Cahorslaan 87
5627 BN, Eindhoven
€ 495.000
k.k.
Interesse in deze woning?
-
Plan een bezichtiging
Cahorslaan 875627 BN, Eindhoven -
Breng een bod uit op Move.nl
Bod plaatsen
Dit kan via het Move.nl platform.
Omschrijving
- Bouwjaar 1985
- Woonoppervlakte 126 m²
- Aantal kamers 6
- Aantal slaapkamers 4
Sfeervolle en verrassend ruime gezinswoning met moderne keuken, 4 slaapkamers, garage en zonnige tuin!
In een rustige, brede straat ligt deze verzorgde en uitgebouwde tussenwoning die direct een warme indruk maakt. De combinatie van een moderne afwerking, fijne lichtinval en een praktische indeling zorgt voor een huis waar je je meteen thuis voelt. Met onder andere een stijlvolle leefkeuken, vier slaapkamers, een garage en een zonnige achtertuin is dit een ideale woning voor wie ruimte en sfeer zoekt.
Begane grond
Via de entree kom je binnen in de hal met toiletruimte (modern afgewerkt) en trapopgang. De woonkamer is ruim en licht dankzij de grote raampartijen aan zowel de voor- als achterzijde. De fraaie visgraatvloer en de warme wandafwerking geven de ruimte direct karakter.
Aan de achterzijde bevindt zich de open keuken met kookeiland, uitgevoerd in een moderne, strakke stijl en voorzien van diverse inbouwapparatuur. Dit is echt een plek waar koken en samenzijn samenkomen. Aansluitend is er volop ruimte voor een eettafel met uitzicht op de tuin.
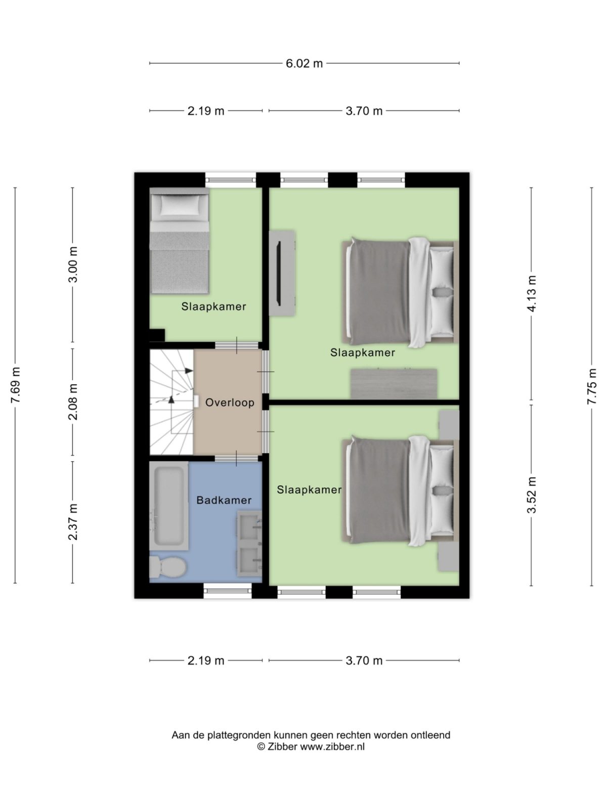
Eerste verdieping
De overloop geeft toegang tot drie slaapkamers van goed formaat. De kamers zijn prettig licht en praktisch in te delen, ideaal als slaap-, werk- of kinderkamer.
De badkamer is compleet uitgevoerd met een ligbad, douche, toilet en wastafelmeubel. De ruimte is netjes onderhouden en biedt volop mogelijkheden om naar eigen smaak te moderniseren.
Tweede verdieping
Via een vaste trap bereik je de zolderverdieping. Hier bevindt zich een royale vierde slaapkamer met dakkapel, wat zorgt voor extra ruimte en licht. Daarnaast is er praktische bergruimte aanwezig.
Buitenruimte
De achtertuin is verzorgd aangelegd en biedt volop privacy. Dankzij de gunstige ligging is het hier heerlijk genieten van het buitenleven. Er is ruimte voor meerdere zitplekken en groen, wat zorgt voor een fijne balans tussen onderhoud en ontspanning.
Achterin de tuin bevindt zich de garage, ideaal voor opslag, hobby of het stallen van een auto.
Ligging
De woning is gelegen in een rustige en kindvriendelijke woonomgeving met volop groen en speelvoorzieningen in de directe nabijheid. Daarnaast zijn winkels, scholen en uitvalswegen eenvoudig bereikbaar, wat zorgt voor een fijne combinatie van rust en bereikbaarheid.
Kenmerken
- Ruime en goed onderhouden tussenwoning
- Moderne open keuken met kookeiland
- Sfeervolle woonkamer met visgraatvloer
- 4 volwaardige slaapkamers
- Badkamer met ligbad, douche en toilet
- Zolderverdieping met dakkapel
- Verzorgde achtertuin met privacy
- Garage op eigen perceel
- Gelegen in een rustige, kindvriendelijke woonomgeving
- Voorzien van zonnepanelen
In een rustige, brede straat ligt deze verzorgde en uitgebouwde tussenwoning die direct een warme indruk maakt. De combinatie van een moderne afwerking, fijne lichtinval en een praktische indeling zorgt voor een huis waar je je meteen thuis voelt. Met onder andere een stijlvolle leefkeuken, vier slaapkamers, een garage en een zonnige achtertuin is dit een ideale woning voor wie ruimte en sfeer zoekt.
Begane grond
Via de entree kom je binnen in de hal met toiletruimte (modern afgewerkt) en trapopgang. De woonkamer is ruim en licht dankzij de grote raampartijen aan zowel de voor- als achterzijde. De fraaie visgraatvloer en de warme wandafwerking geven de ruimte direct karakter.
Aan de achterzijde bevindt zich de open keuken met kookeiland, uitgevoerd in een moderne, strakke stijl en voorzien van diverse inbouwapparatuur. Dit is echt een plek waar koken en samenzijn samenkomen. Aansluitend is er volop ruimte voor een eettafel met uitzicht op de tuin.
Eerste verdieping
De overloop geeft toegang tot drie slaapkamers van goed formaat. De kamers zijn prettig licht en praktisch in te delen, ideaal als slaap-, werk- of kinderkamer.
De badkamer is compleet uitgevoerd met een ligbad, douche, toilet en wastafelmeubel. De ruimte is netjes onderhouden en biedt volop mogelijkheden om naar eigen smaak te moderniseren.
Tweede verdieping
Via een vaste trap bereik je de zolderverdieping. Hier bevindt zich een royale vierde slaapkamer met dakkapel, wat zorgt voor extra ruimte en licht. Daarnaast is er praktische bergruimte aanwezig.
Buitenruimte
De achtertuin is verzorgd aangelegd en biedt volop privacy. Dankzij de gunstige ligging is het hier heerlijk genieten van het buitenleven. Er is ruimte voor meerdere zitplekken en groen, wat zorgt voor een fijne balans tussen onderhoud en ontspanning.
Achterin de tuin bevindt zich de garage, ideaal voor opslag, hobby of het stallen van een auto.
Ligging
De woning is gelegen in een rustige en kindvriendelijke woonomgeving met volop groen en speelvoorzieningen in de directe nabijheid. Daarnaast zijn winkels, scholen en uitvalswegen eenvoudig bereikbaar, wat zorgt voor een fijne combinatie van rust en bereikbaarheid.
Kenmerken
- Ruime en goed onderhouden tussenwoning
- Moderne open keuken met kookeiland
- Sfeervolle woonkamer met visgraatvloer
- 4 volwaardige slaapkamers
- Badkamer met ligbad, douche en toilet
- Zolderverdieping met dakkapel
- Verzorgde achtertuin met privacy
- Garage op eigen perceel
- Gelegen in een rustige, kindvriendelijke woonomgeving
- Voorzien van zonnepanelen
Advies over de juiste hypotheek?
Bel Robert: 040-2927575
Kenmerken
Overdracht
| Status | Beschikbaar |
| Vraagprijs | € 495.000 k.k. |
| Aanvaarding | In overleg |
Bouwvorm
| Soort Woning | Eengezinswoning |
| Type Woning | Tussenwoning |
| Bouwjaar | 1985 |
| Bouwvorm | Bestaande bouw |
| Woonoppervlakte | 126 m² |
| Garage Capaciteit | 1 |
| Perceeloppervlakte | 198 m² |
| Externe Bergruimte | 31 m² |
| Aantal Kamers | 6 |
| Aantal Slaapkamers | 4 |
| Aantal Woonlagen | 3 |
| Inhoud | 445 m³ |
| Cv Ketel Merk | Vaillant eco tec plus |
| Cv Ketel Bouwjaar | 2016 |
Parkeergelegenheid
| Parkeerfaciliteiten | Openbaar parkeren |
Overig
| Onderhoud Binnen | Goed |
| Onderhoud Buiten | Goed |
| Huidige Bestemming | Woonruimte |
Kadaster
| Gemeente | Woensel |
| Sectie | S |
| Perceel | 1795 |
| Oppervlakte | 198 m² |
| Eigendomssituatie | Volle eigendom |