Gerard Bromlaan 46
5624 GV, Eindhoven
€ 400.000
k.k.
Interesse in deze woning?
-
Plan een bezichtiging
Gerard Bromlaan 465624 GV, Eindhoven -
Breng een bod uit op Move.nl
Bod plaatsen
Dit kan via het Move.nl platform.
Omschrijving
- Bouwjaar 1961
- Woonoppervlakte 122 m²
- Aantal kamers 4
- Aantal slaapkamers 3
Tussenwoning met dakkapel, moderne voorzieningen en volop mogelijkheden in Woensel-Noord
In een rustige en groene straat in Woensel-Noord staat deze tussenwoning met berging, dakkapel en zonnige achtertuin met achterom. De woning beschikt over een moderne keuken, een in 2023 vernieuwde keuken, badkamer en 10 zonnepanelen. Tegelijkertijd biedt het geheel nog volop mogelijkheden om de woning naar eigen smaak verder te moderniseren – ideaal voor kopers die hun eigen stempel willen drukken.
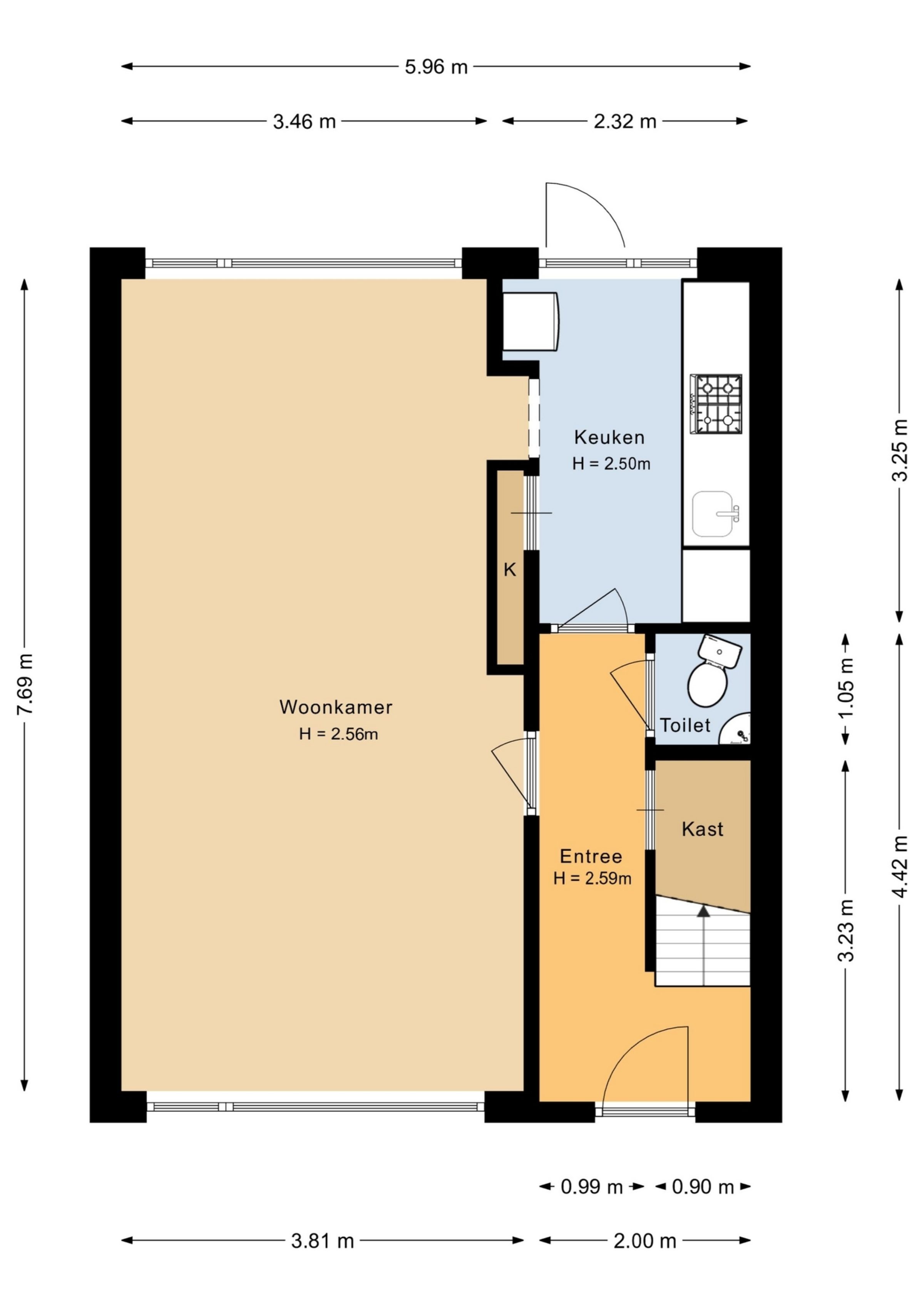
Begane grond
De entree geeft toegang tot de hal met meterkast en trapopgang. Vanuit hier loopt u door naar de lichte woonkamer, die dankzij de grote ramen aan voor- en achterzijde een prettige, open sfeer heeft. Er is voldoende ruimte voor zowel een comfortabele zithoek als een eethoek.
De open, vernieuwde keuken (2023) aan de achterzijde is uitgevoerd in een moderne rechte opstelling en biedt praktische werk- en bergruimte. Vanuit de keuken heeft u direct toegang tot de achtertuin. Tevens is er een zonnescherm aanwezig, wat zorgt voor extra comfort op zonnige dagen.
De achtertuin is een fijne buitenruimte die nog naar eigen inzicht verder kan worden ingericht. Dankzij de achterom en de vrijstaande berging is de tuin bovendien erg praktisch in gebruik.
Eerste verdieping
Op de eerste verdieping bevinden zich twee goed bemeten slaapkamers, beide met een prettige lichtinval en flexibel in te delen.
De badkamer is in 2023 vernieuwd en heeft een moderne uitstraling. Deze is voorzien van een douche, wastafel en toilet. Daarnaast is er een extra separate doucheruimte met wastafelmeubel en douchecabine aanwezig. Op de overloop vindt u tevens een handige kastruimte.
Tweede verdieping
De zolderverdieping is door de dakkapel uitgegroeid tot een volwaardige woonlaag. Hier bevindt zich een ruime derde slaapkamer met veel daglicht. Op de voorzolder zijn de cv-installatie (huur) en extra bergruimte achter de knieschotten gesitueerd. Deze verdieping leent zich uitstekend als slaap-, werk- of hobbyruimte.
Locatie
De woning ligt in een prettige en groene woonomgeving in Woensel-Noord. In de directe nabijheid zijn diverse voorzieningen te vinden, waaronder scholen, sportaccommodaties en een zwembad. Voor winkels en dagelijkse boodschappen is winkelcentrum WoenselXL snel bereikbaar. Ook de bereikbaarheid richting het centrum van Eindhoven en uitvalswegen is goed geregeld.
ALGEMEEN:
- Tussenwoning met berging en achterom
- Mogelijkheid tot modernisering naar eigen wens
- Moderne keuken (rechte opstelling)
- Badkamer en keuken vernieuwd in 2023
- Voorzien van 10 zonnepanelen
- Gedeeltelijk voorzien van rolluiken
- Dakkapel op zolderverdieping
- Zonnige achtertuin met inrichtingsmogelijkheden
- Rustige ligging in groene woonomgeving
- Nabij diverse voorzieningen en WoenselXL
Kortom: een woning met een goede basis, moderne voorzieningen en volop potentie op een fijne locatie in Eindhoven.
Gerard Bromlaan 46 is zeker een bezichtiging waard!
In een rustige en groene straat in Woensel-Noord staat deze tussenwoning met berging, dakkapel en zonnige achtertuin met achterom. De woning beschikt over een moderne keuken, een in 2023 vernieuwde keuken, badkamer en 10 zonnepanelen. Tegelijkertijd biedt het geheel nog volop mogelijkheden om de woning naar eigen smaak verder te moderniseren – ideaal voor kopers die hun eigen stempel willen drukken.
Begane grond
De entree geeft toegang tot de hal met meterkast en trapopgang. Vanuit hier loopt u door naar de lichte woonkamer, die dankzij de grote ramen aan voor- en achterzijde een prettige, open sfeer heeft. Er is voldoende ruimte voor zowel een comfortabele zithoek als een eethoek.
De open, vernieuwde keuken (2023) aan de achterzijde is uitgevoerd in een moderne rechte opstelling en biedt praktische werk- en bergruimte. Vanuit de keuken heeft u direct toegang tot de achtertuin. Tevens is er een zonnescherm aanwezig, wat zorgt voor extra comfort op zonnige dagen.
De achtertuin is een fijne buitenruimte die nog naar eigen inzicht verder kan worden ingericht. Dankzij de achterom en de vrijstaande berging is de tuin bovendien erg praktisch in gebruik.
Eerste verdieping
Op de eerste verdieping bevinden zich twee goed bemeten slaapkamers, beide met een prettige lichtinval en flexibel in te delen.
De badkamer is in 2023 vernieuwd en heeft een moderne uitstraling. Deze is voorzien van een douche, wastafel en toilet. Daarnaast is er een extra separate doucheruimte met wastafelmeubel en douchecabine aanwezig. Op de overloop vindt u tevens een handige kastruimte.
Tweede verdieping
De zolderverdieping is door de dakkapel uitgegroeid tot een volwaardige woonlaag. Hier bevindt zich een ruime derde slaapkamer met veel daglicht. Op de voorzolder zijn de cv-installatie (huur) en extra bergruimte achter de knieschotten gesitueerd. Deze verdieping leent zich uitstekend als slaap-, werk- of hobbyruimte.
Locatie
De woning ligt in een prettige en groene woonomgeving in Woensel-Noord. In de directe nabijheid zijn diverse voorzieningen te vinden, waaronder scholen, sportaccommodaties en een zwembad. Voor winkels en dagelijkse boodschappen is winkelcentrum WoenselXL snel bereikbaar. Ook de bereikbaarheid richting het centrum van Eindhoven en uitvalswegen is goed geregeld.
ALGEMEEN:
- Tussenwoning met berging en achterom
- Mogelijkheid tot modernisering naar eigen wens
- Moderne keuken (rechte opstelling)
- Badkamer en keuken vernieuwd in 2023
- Voorzien van 10 zonnepanelen
- Gedeeltelijk voorzien van rolluiken
- Dakkapel op zolderverdieping
- Zonnige achtertuin met inrichtingsmogelijkheden
- Rustige ligging in groene woonomgeving
- Nabij diverse voorzieningen en WoenselXL
Kortom: een woning met een goede basis, moderne voorzieningen en volop potentie op een fijne locatie in Eindhoven.
Gerard Bromlaan 46 is zeker een bezichtiging waard!
Advies over de juiste hypotheek?
Bel Robert: 040-2927575
Informatie downloaden van Gerard Bromlaan 46
Informatie downloaden van Gerard Bromlaan 46
Kenmerken
Overdracht
| Status | Beschikbaar |
| Vraagprijs | € 400.000 k.k. |
| Aanvaarding | In overleg |
Bouwvorm
| Soort Woning | Eengezinswoning |
| Type Woning | Tussenwoning |
| Bouwjaar | 1961 |
| Bouwvorm | Bestaande bouw |
| Woonoppervlakte | 122 m² |
| Perceeloppervlakte | 149 m² |
| Externe Bergruimte | 9 m² |
| Aantal Kamers | 4 |
| Aantal Slaapkamers | 3 |
| Aantal Woonlagen | 3 |
| Inhoud | 406 m³ |
Bergruimte
| Schuur/Berging | Vrijstaand steen |
Parkeergelegenheid
| Parkeerfaciliteiten | Openbaar parkeren |
Overig
| Onderhoud Binnen | Matig tot redelijk |
| Onderhoud Buiten | Goed |
| Huidige Bestemming | Woonruimte |
Kadaster
| Gemeente | Woensel |
| Sectie | P |
| Perceel | 444 |
| Oppervlakte | 149 m² |
| Eigendomssituatie | Volle eigendom |