Vliegende Koffer 17
5629 KL, Eindhoven
€ 525.000
k.k.
Interesse in deze woning?
-
Plan een bezichtiging
Vliegende Koffer 175629 KL, Eindhoven -
Breng een bod uit op Move.nl
Bod plaatsen
Dit kan via het Move.nl platform.
Omschrijving
- Bouwjaar 1993
- Woonoppervlakte 111 m²
- Aantal kamers 4
- Aantal slaapkamers 3
Ruime halfvrijstaande woning met garage, oprit en diepe zonnige tuin in Blixembosch
Gelegen aan een groene straat in de gewilde wijk Blixembosch ligt deze verrassend ruime halfvrijstaande woning met eigen oprit, garage en een diepe achtertuin met veel privacy. De woning kenmerkt zich door de royale maatvoering, prettige lichtinval en een fijne indeling, waarbij binnen en buiten op een natuurlijke manier in elkaar overlopen. Aan de voorzijde geniet je bovendien van vrij uitzicht.
Begane grond
Bij binnenkomst word je ontvangen in de hal met meterkast en een modern toilet, stijlvol afgewerkt met een fraaie fonteinwand. Vanuit de hal stap je de royale en heerlijk lichte living in, voorzien van een eikenhouten visgraat parketvloer. De voorramen van de woonkamer zijn uitgerust met zonwering (knikarmschermen). Dankzij de grote raampartijen en de dubbele openslaande deuren naar de terrasoverkapping ontstaat een fijne, open sfeer en een directe verbinding met de tuin.
De keuken is strak en modern uitgevoerd en voorzien van diverse inbouwapparatuur, waaronder een koelkast, vriezer, vaatwasser, inductiekookplaat en afzuigkap. Aansluitend bevindt zich de praktische bijkeuken met houten vloer en extra keukenblok met combi-oven. Ideaal als verlengstuk van de keuken of voor extra bergruimte, met een deur naar de overkapping.
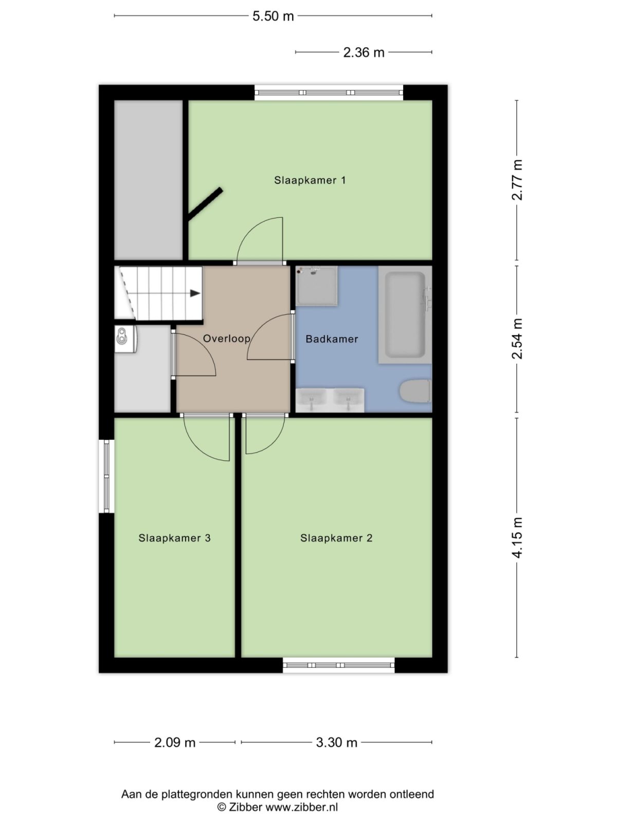
Eerste verdieping
Op de eerste verdieping bevinden zich drie volwaardige slaapkamers, stuk voor stuk prettig van formaat en voorzien van veel lichtinval. De ouderslaapkamer is uitgerust met rolluiken en een airconditioning (inverter), waarmee zowel gekoeld als verwarmd kan worden.
De overige slaapkamers zijn eveneens ruim en flexibel in te delen, bijvoorbeeld als werk- of kinderkamer. De kinderkamer is tevens voorzien van rolluiken. Vanuit één van de kamers is bovendien een handige inpandige bergruimte bereikbaar. De badkamer is compleet en verzorgd uitgevoerd met een douchecabine, ligbad, dubbel wastafelmeubel, verwarmde spiegel, handdoekradiator en een designradiator.
Tuin en buitenruimte
De achtertuin is diep, zonnig en biedt veel privacy. De tuin is netjes aangelegd met een strak kunstgrasveld, volwassen beplanting en een praktische achterom. Onder de terrasoverkapping met ingebouwde spotjes zit je heerlijk beschut, terwijl een tweede terras achterin de tuin zorgt voor extra zitmogelijkheden en een directe doorgang naar de garage.
De tuin beschikt over een dubbele achterom: zowel achterin de tuin, als via de zijkant langs de voordeur. Ook de voor- en zijtuin zijn verzorgd aangelegd en dragen bij aan het vrije en groene karakter.
Garage en oprit
De ruime garage, bereikbaar via de eigen oprit, is voorzien van een elektrische deur en biedt plaats aan een auto en extra bergruimte. Daarnaast is er in de straat volop parkeergelegenheid aanwezig.
De woning is gelegen in een rustige en kindvriendelijke woonomgeving met alle voorzieningen binnen handbereik, zoals winkels, scholen, sportfaciliteiten en diverse uitvalswegen.
- Halfvrijstaande woning;
- Gelegen in de gewilde wijk Blixembosch;
- Groene straat met vrij uitzicht;
- Garage met elektrische deur;
- Oprit met parkeergelegenheid op eigen terrein;
- Diepe, zonnige achtertuin met veel privacy en achterom;
- Terrasoverkapping met verlichting;
- Moderne en strakke keuken met inbouwapparatuur;
- Praktische bijkeuken met extra keukenblok en combi-oven;
- Royale en lichte woonkamer met openslaande deuren;
- Eikenhouten parketvloer in visgraad is volledig doorgelegd op de begane grond;
- 3 volwaardige slaapkamers;
- Airconditioning (koelen en verwarmen) op de hoofdslaapkamer;
- Complete badkamer met ligbad en douche;
- Veel parkeergelegenheid in de straat;
- De woning is vanuit de bouw voorbereid op het toevoegen van een extra verdieping (zoals zichtbaar
bij de buren en meerdere huizen aan de straat Eeuwig Licht).
Toevoegen van een verdieping (+- 45 m2 woonoppervlak) maakt het mogelijk om twee extra
slaapkamers toe te voegen.
Gelegen aan een groene straat in de gewilde wijk Blixembosch ligt deze verrassend ruime halfvrijstaande woning met eigen oprit, garage en een diepe achtertuin met veel privacy. De woning kenmerkt zich door de royale maatvoering, prettige lichtinval en een fijne indeling, waarbij binnen en buiten op een natuurlijke manier in elkaar overlopen. Aan de voorzijde geniet je bovendien van vrij uitzicht.
Begane grond
Bij binnenkomst word je ontvangen in de hal met meterkast en een modern toilet, stijlvol afgewerkt met een fraaie fonteinwand. Vanuit de hal stap je de royale en heerlijk lichte living in, voorzien van een eikenhouten visgraat parketvloer. De voorramen van de woonkamer zijn uitgerust met zonwering (knikarmschermen). Dankzij de grote raampartijen en de dubbele openslaande deuren naar de terrasoverkapping ontstaat een fijne, open sfeer en een directe verbinding met de tuin.
De keuken is strak en modern uitgevoerd en voorzien van diverse inbouwapparatuur, waaronder een koelkast, vriezer, vaatwasser, inductiekookplaat en afzuigkap. Aansluitend bevindt zich de praktische bijkeuken met houten vloer en extra keukenblok met combi-oven. Ideaal als verlengstuk van de keuken of voor extra bergruimte, met een deur naar de overkapping.
Eerste verdieping
Op de eerste verdieping bevinden zich drie volwaardige slaapkamers, stuk voor stuk prettig van formaat en voorzien van veel lichtinval. De ouderslaapkamer is uitgerust met rolluiken en een airconditioning (inverter), waarmee zowel gekoeld als verwarmd kan worden.
De overige slaapkamers zijn eveneens ruim en flexibel in te delen, bijvoorbeeld als werk- of kinderkamer. De kinderkamer is tevens voorzien van rolluiken. Vanuit één van de kamers is bovendien een handige inpandige bergruimte bereikbaar. De badkamer is compleet en verzorgd uitgevoerd met een douchecabine, ligbad, dubbel wastafelmeubel, verwarmde spiegel, handdoekradiator en een designradiator.
Tuin en buitenruimte
De achtertuin is diep, zonnig en biedt veel privacy. De tuin is netjes aangelegd met een strak kunstgrasveld, volwassen beplanting en een praktische achterom. Onder de terrasoverkapping met ingebouwde spotjes zit je heerlijk beschut, terwijl een tweede terras achterin de tuin zorgt voor extra zitmogelijkheden en een directe doorgang naar de garage.
De tuin beschikt over een dubbele achterom: zowel achterin de tuin, als via de zijkant langs de voordeur. Ook de voor- en zijtuin zijn verzorgd aangelegd en dragen bij aan het vrije en groene karakter.
Garage en oprit
De ruime garage, bereikbaar via de eigen oprit, is voorzien van een elektrische deur en biedt plaats aan een auto en extra bergruimte. Daarnaast is er in de straat volop parkeergelegenheid aanwezig.
De woning is gelegen in een rustige en kindvriendelijke woonomgeving met alle voorzieningen binnen handbereik, zoals winkels, scholen, sportfaciliteiten en diverse uitvalswegen.
- Halfvrijstaande woning;
- Gelegen in de gewilde wijk Blixembosch;
- Groene straat met vrij uitzicht;
- Garage met elektrische deur;
- Oprit met parkeergelegenheid op eigen terrein;
- Diepe, zonnige achtertuin met veel privacy en achterom;
- Terrasoverkapping met verlichting;
- Moderne en strakke keuken met inbouwapparatuur;
- Praktische bijkeuken met extra keukenblok en combi-oven;
- Royale en lichte woonkamer met openslaande deuren;
- Eikenhouten parketvloer in visgraad is volledig doorgelegd op de begane grond;
- 3 volwaardige slaapkamers;
- Airconditioning (koelen en verwarmen) op de hoofdslaapkamer;
- Complete badkamer met ligbad en douche;
- Veel parkeergelegenheid in de straat;
- De woning is vanuit de bouw voorbereid op het toevoegen van een extra verdieping (zoals zichtbaar
bij de buren en meerdere huizen aan de straat Eeuwig Licht).
Toevoegen van een verdieping (+- 45 m2 woonoppervlak) maakt het mogelijk om twee extra
slaapkamers toe te voegen.
Advies over de juiste hypotheek?
Bel Robert: 040-2927575
Informatie downloaden van Vliegende Koffer 17
Informatie downloaden van Vliegende Koffer 17
Kenmerken
Overdracht
| Status | Beschikbaar |
| Vraagprijs | € 525.000 k.k. |
| Aanvaarding | In overleg |
Bouwvorm
| Soort Woning | Eengezinswoning |
| Type Woning | Twee onder een kapwoning |
| Bouwjaar | 1993 |
| Bouwvorm | Bestaande bouw |
| Woonoppervlakte | 111 m² |
| Perceeloppervlakte | 238 m² |
| Externe Bergruimte | 17 m² |
| Aantal Kamers | 4 |
| Aantal Slaapkamers | 3 |
| Aantal Woonlagen | 2 |
| Inhoud | 356 m³ |
| Cv Ketel Bouwjaar | 2009 |
Bergruimte
| Schuur/Berging | Aangebouwd steen |
Parkeergelegenheid
| Parkeerfaciliteiten | Openbaar parkeren |
Overig
| Onderhoud Binnen | Goed tot uitstekend |
| Onderhoud Buiten | Goed tot uitstekend |
| Huidige Bestemming | Woonruimte |
Kadaster
| Gemeente | Woensel |
| Sectie | W |
| Perceel | 4213 |
| Oppervlakte | 238 m² |
| Eigendomssituatie | Volle eigendom |