Pegbroekenlaan 18
5504 MN, Veldhoven
€ 625.000
k.k.
Dit object is
Verkocht
Omschrijving
- Bouwjaar 2001
- Woonoppervlakte 183 m²
- Aantal kamers 7
- Aantal slaapkamers 4
Pegbroekenlaan 18 te Veldhoven
Jonge en royale gezinswoning met 4-5 slaapkamers én speel-/werkkamer op de begane grond!
Dit heerlijk lichte, vrijstaand geschakelde herenhuis is royaal van formaat en heeft een riante living, ruime woon-/eetkeuken, een fijne speel- of werkkamer op de begane grond, 4 slaapkamers (oorspronkelijk 5 slaapkamers), een complete badkamer, zolderberging, onderhoudsvriendelijk aangelegde voortuin met oprit en een brede achtertuin op het zonnige zuidwesten met luxe terrasoverkapping en achterom.
Ligging op een rustige locatie in de gewilde wijk Pegbroeken van Veldhoven-dorp. Vlakbij diverse voorzieningen, zoals: restaurants, winkels (Kromstraat), scholen, sport- en speelvoorzieningen, uitvalswegen, ASML, MMC Veldhoven, City Centrum Veldhoven en Eindhoven Centrum. Kortom, laat u verrassen! Deze fijne gezinswoning is beslist een bezichtiging waard!
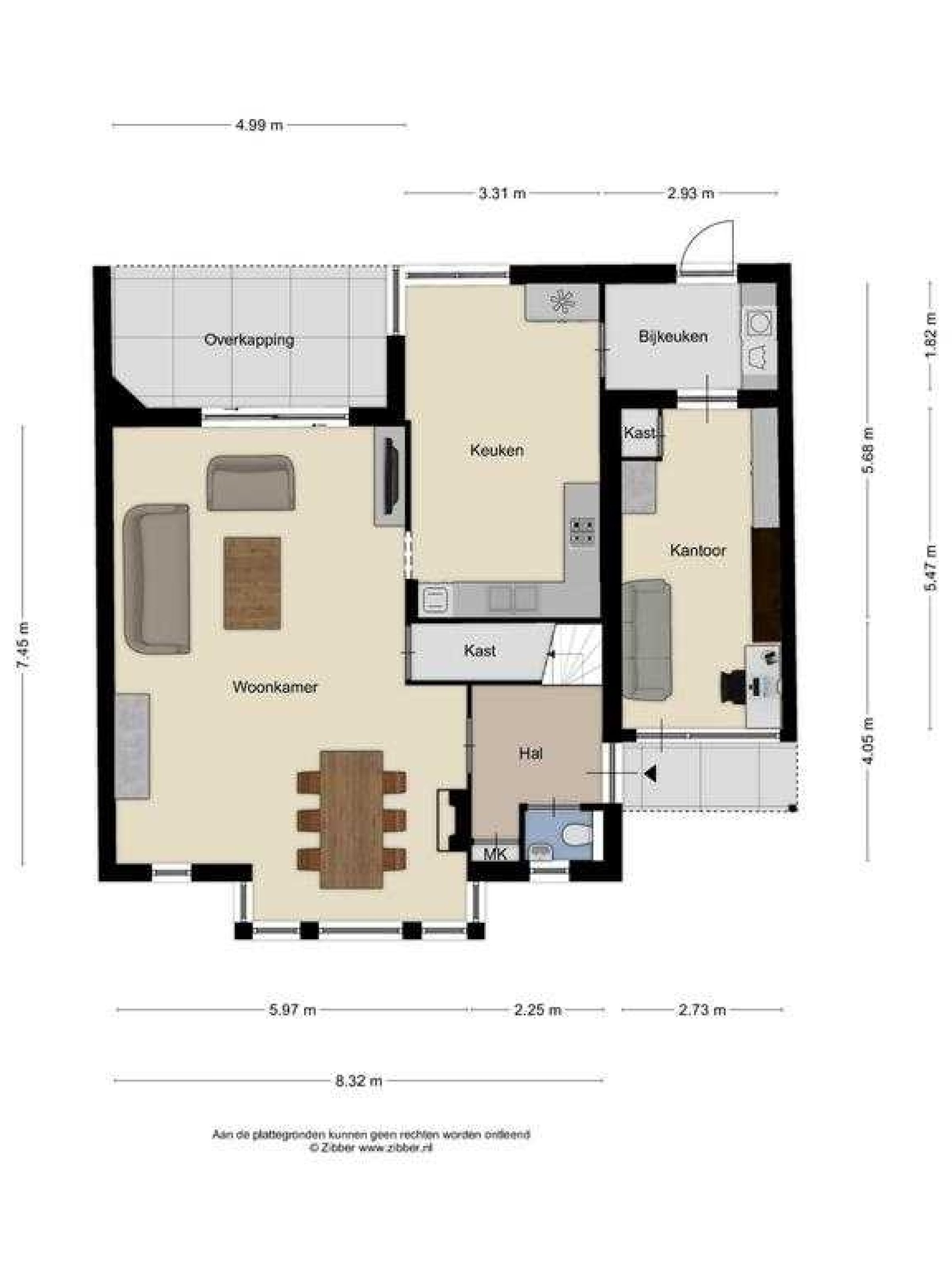
Indeling:
Begane grond:
Hal:
Via een bestrate oprit met overdekte entree is de hal van het woonhuis bereikbaar. De ruime hal is uitgevoerd met stucwerk wanden- en plafond, een garderobenis, trapopgang naar de verdieping, toilet en een meterkast (met 6 groepen, 2 aardlekschakelaars, glasvezelaansluiting, alarm en slimme meters). De afsluitbare hal biedt toegang tot de living.
Toilet:
Het geheel betegelde toilet is uitgerust met een hangend closet, fonteintje en speels rond (vast) raam.
Living:
Via een nette toegangsdeur met glasinzet is er vanuit de hal toegang tot de riante living. De living is uitgevoerd met stucwerk wanden, een stucwerk plafond met sierlijsten, gezellige knusse hoekjes en grote raampartijen (waaronder een sfeervol, breed erkerraam aan de voorzijde) met een prettige lichtinval. Een schuifpui inclusief plissé hordeur biedt toegang tot de achtertuin alsmede het terras. In de living bevindt zich bovendien een sfeervolle gashaard (merk Faber) met een fraaie schouw, airconditioning en een diepe, vaste inbouwkast met provisieruimte en verlichting.
Woon-/eetkeuken:
Een open doorgang biedt vanuit de living toegang tot de royale keukenruimte. De lichte woon-/eetkeuken heeft een grote raampartij welke een prettige lichtinval biedt en tevens een fijn uitzicht geeft op de achtertuin. De L-vormige keukeninstallatie is voorzien van diverse onder- en bovenkasten, een duropal werkblad, anderhalve rvs spoelbak, een betegelde achterwand en inbouwapparatuur zoals: een vaatwasser, oven, magnetron, afzuigkap en 4-pits gaskookplaat. De aanwezige koel-/vriescombinatie wordt ter overname aangeboden. De grote keuken oppervlakte is ideaal voor het plaatsen van een forse eettafel met stoelen.
Bijkeuken:
Vanuit de keuken is een praktische, afsluitbare bijkeuken bereikbaar. De betegelde bijkeuken is uitgerust met een aansluiting voor de was-/ en droogapparatuur en heeft een werkblad erboven alsmede een deur naar de achtertuin. Deze ruimte biedt bovendien toegang tot een diepe werk- of speelkamer.
Werk- of speelkamer:
Deze ruime werk-/ of speelkamer bevindt zich in de voormalige garage. De fijne kamer heeft een grote raampartij met een prettige lichtinval en uitzicht op de oprit alsmede de straat aan de voorzijde. De kamer is uitgevoerd met vloerbedekking, stucwerk wanden en ook een deur naar de oprit. Hier is ook een vaste kast te vinden (met daarin de opstelling van de unit voor de vloerverwarming) en een gootsteen met warm en koud waterkraan.
Eerste verdieping:
Overloop:
De ruime overloop biedt toegang tot 3 (oorspronkelijk 4) slaapkamers en een grote, complete badkamer. De overloop is voorzien van een pvc vloer, stucwerk wanden, een stucwerk plafond en een groot vast raam met prettige lichtinval.
Slaapkamers:
Alle slaapkamers zijn licht, royaal van formaat en hebben vinyl vloerbedekking, structuurwerk wanden en een spuitwerk plafond.
Slaapkamer 1: deze zeer royale ouderslaapkamer is gelegen aan de voorzijde.
Slaapkamer 2: gelegen aan de voorzijde.
Slaapkamer 3: gelegen aan de achterzijde. Oorspronkelijk zijn dit twee slaapkamers en dit is, indien gewenst, eventueel heel eenvoudig weer te realiseren.
Badkamer:
Deze ruime, betegelde badkamer is ingericht met een vaste wastafel in een meubel (met spiegel en spotjes), een duo ligbad (met handdouche, jet stream, whirlpool, glazen spatscherm, living colors verlichting en radio) en een tweede toilet met hangend closet. In de badkamer bevindt zich bovendien handdoekenradiator, een raampartij met prettige lichtinval alsmede ventilatiemogelijkheden, een houten lambrisering en betegelde wanden.
Tweede verdieping:
Via een vaste trap is een kleine overloop bereikbaar. Deze overloop is voorzien van een laminaatvloer, airconditioning en biedt toegang tot een vierde slaapkamer alsmede tot een afsluitbare bergruimte.
Slaapkamer:
Slaapkamer 4: gesitueerd aan de voorzijde. Deze ruime slaapkamer is uitgevoerd met een laminaatvloer, verwarmingsradiator en een dakkapel met rolluik (handmatig bedienbaar).
Bergruimte:
Deze grote, afsluitbare ruimte heeft een praktische bergvliering, verlichting en elektra. Hier bevindt zich de opstelling van de cv combiketel (merk Nefit, type Ecomline HR, bouwjaar 2001) en de unit voor de mechanische ventilatie.
Tuin:
De onderhoudsvriendelijk aangelegde voortuin is geheel voorzien van sierbestrating en heeft een eigen oprit met parkeerruimte voor 1 auto. De eveneens onderhoudsvriendelijk aangelegde achtertuin is gesitueerd op het zonnige zuidoosten, heeft een luxe terrasoverkapping direct aan het huis (met inbouwspotjes, geluidsspeakers en een brede lichtkoepel in het plafond alsmede een vaste kast met elektravoorziening). Onder de terrasoverkapping bevindt zich een licht betegeld terras met de ideale ruimte voor een grote eettafel en stoelen. De bestrate achtertuin is verder voorzien van verlichting, een houten schutting, achterom via een poort, leiplatanen en een houten tuinhuisje met een praktische overkapping ernaast voor het stallen van bijvoorbeeld fietsen of scooters.
Algemeen:
- Zeer royaal, vrijstaand geschakeld herenhuis op een mooie woonlocatie nabij alle voorzieningen;
- De hal, living en keuken zijn voorzien van een Indiase leistenen tegelvloer inclusief vloerverwarming;
- Royale werk-/speel- of hobbykamer op de begane grond met eigen entree;
- Riante living met sfeervolle gashaard en erkerraam;
- Grote en lichte woon-/eetkeuken;
- Vier slaapkamers (oorspronkelijk vijf) met de eenvoudige mogelijkheid er weer vijf slaapkamers te realiseren;
- Complete badkamer;
- Voorzien van dak-, vloer- en muurisolatie alsmede hardhouten kozijnen met isolerende beglazing;
- Alarminstallatie aanwezig;
- Er is sprake van airconditioning (in de living én op de tweede verdieping);
- De brede achtertuin is gelegen op het heerlijk zonnige zuidoosten;
- De luxe terrasoverkapping aan de achterzijde is gerealiseerd in 2012;
- Het buitenschilderwerk is vernieuwd in 2020;
- Bouwjaar 2001;
- Perceeloppervlakte 245 m2;
- Kom gauw kijken naar dit interessante aanbod en laat u verrassen!
Jonge en royale gezinswoning met 4-5 slaapkamers én speel-/werkkamer op de begane grond!
Dit heerlijk lichte, vrijstaand geschakelde herenhuis is royaal van formaat en heeft een riante living, ruime woon-/eetkeuken, een fijne speel- of werkkamer op de begane grond, 4 slaapkamers (oorspronkelijk 5 slaapkamers), een complete badkamer, zolderberging, onderhoudsvriendelijk aangelegde voortuin met oprit en een brede achtertuin op het zonnige zuidwesten met luxe terrasoverkapping en achterom.
Ligging op een rustige locatie in de gewilde wijk Pegbroeken van Veldhoven-dorp. Vlakbij diverse voorzieningen, zoals: restaurants, winkels (Kromstraat), scholen, sport- en speelvoorzieningen, uitvalswegen, ASML, MMC Veldhoven, City Centrum Veldhoven en Eindhoven Centrum. Kortom, laat u verrassen! Deze fijne gezinswoning is beslist een bezichtiging waard!
Indeling:
Begane grond:
Hal:
Via een bestrate oprit met overdekte entree is de hal van het woonhuis bereikbaar. De ruime hal is uitgevoerd met stucwerk wanden- en plafond, een garderobenis, trapopgang naar de verdieping, toilet en een meterkast (met 6 groepen, 2 aardlekschakelaars, glasvezelaansluiting, alarm en slimme meters). De afsluitbare hal biedt toegang tot de living.
Toilet:
Het geheel betegelde toilet is uitgerust met een hangend closet, fonteintje en speels rond (vast) raam.
Living:
Via een nette toegangsdeur met glasinzet is er vanuit de hal toegang tot de riante living. De living is uitgevoerd met stucwerk wanden, een stucwerk plafond met sierlijsten, gezellige knusse hoekjes en grote raampartijen (waaronder een sfeervol, breed erkerraam aan de voorzijde) met een prettige lichtinval. Een schuifpui inclusief plissé hordeur biedt toegang tot de achtertuin alsmede het terras. In de living bevindt zich bovendien een sfeervolle gashaard (merk Faber) met een fraaie schouw, airconditioning en een diepe, vaste inbouwkast met provisieruimte en verlichting.
Woon-/eetkeuken:
Een open doorgang biedt vanuit de living toegang tot de royale keukenruimte. De lichte woon-/eetkeuken heeft een grote raampartij welke een prettige lichtinval biedt en tevens een fijn uitzicht geeft op de achtertuin. De L-vormige keukeninstallatie is voorzien van diverse onder- en bovenkasten, een duropal werkblad, anderhalve rvs spoelbak, een betegelde achterwand en inbouwapparatuur zoals: een vaatwasser, oven, magnetron, afzuigkap en 4-pits gaskookplaat. De aanwezige koel-/vriescombinatie wordt ter overname aangeboden. De grote keuken oppervlakte is ideaal voor het plaatsen van een forse eettafel met stoelen.
Bijkeuken:
Vanuit de keuken is een praktische, afsluitbare bijkeuken bereikbaar. De betegelde bijkeuken is uitgerust met een aansluiting voor de was-/ en droogapparatuur en heeft een werkblad erboven alsmede een deur naar de achtertuin. Deze ruimte biedt bovendien toegang tot een diepe werk- of speelkamer.
Werk- of speelkamer:
Deze ruime werk-/ of speelkamer bevindt zich in de voormalige garage. De fijne kamer heeft een grote raampartij met een prettige lichtinval en uitzicht op de oprit alsmede de straat aan de voorzijde. De kamer is uitgevoerd met vloerbedekking, stucwerk wanden en ook een deur naar de oprit. Hier is ook een vaste kast te vinden (met daarin de opstelling van de unit voor de vloerverwarming) en een gootsteen met warm en koud waterkraan.
Eerste verdieping:
Overloop:
De ruime overloop biedt toegang tot 3 (oorspronkelijk 4) slaapkamers en een grote, complete badkamer. De overloop is voorzien van een pvc vloer, stucwerk wanden, een stucwerk plafond en een groot vast raam met prettige lichtinval.
Slaapkamers:
Alle slaapkamers zijn licht, royaal van formaat en hebben vinyl vloerbedekking, structuurwerk wanden en een spuitwerk plafond.
Slaapkamer 1: deze zeer royale ouderslaapkamer is gelegen aan de voorzijde.
Slaapkamer 2: gelegen aan de voorzijde.
Slaapkamer 3: gelegen aan de achterzijde. Oorspronkelijk zijn dit twee slaapkamers en dit is, indien gewenst, eventueel heel eenvoudig weer te realiseren.
Badkamer:
Deze ruime, betegelde badkamer is ingericht met een vaste wastafel in een meubel (met spiegel en spotjes), een duo ligbad (met handdouche, jet stream, whirlpool, glazen spatscherm, living colors verlichting en radio) en een tweede toilet met hangend closet. In de badkamer bevindt zich bovendien handdoekenradiator, een raampartij met prettige lichtinval alsmede ventilatiemogelijkheden, een houten lambrisering en betegelde wanden.
Tweede verdieping:
Via een vaste trap is een kleine overloop bereikbaar. Deze overloop is voorzien van een laminaatvloer, airconditioning en biedt toegang tot een vierde slaapkamer alsmede tot een afsluitbare bergruimte.
Slaapkamer:
Slaapkamer 4: gesitueerd aan de voorzijde. Deze ruime slaapkamer is uitgevoerd met een laminaatvloer, verwarmingsradiator en een dakkapel met rolluik (handmatig bedienbaar).
Bergruimte:
Deze grote, afsluitbare ruimte heeft een praktische bergvliering, verlichting en elektra. Hier bevindt zich de opstelling van de cv combiketel (merk Nefit, type Ecomline HR, bouwjaar 2001) en de unit voor de mechanische ventilatie.
Tuin:
De onderhoudsvriendelijk aangelegde voortuin is geheel voorzien van sierbestrating en heeft een eigen oprit met parkeerruimte voor 1 auto. De eveneens onderhoudsvriendelijk aangelegde achtertuin is gesitueerd op het zonnige zuidoosten, heeft een luxe terrasoverkapping direct aan het huis (met inbouwspotjes, geluidsspeakers en een brede lichtkoepel in het plafond alsmede een vaste kast met elektravoorziening). Onder de terrasoverkapping bevindt zich een licht betegeld terras met de ideale ruimte voor een grote eettafel en stoelen. De bestrate achtertuin is verder voorzien van verlichting, een houten schutting, achterom via een poort, leiplatanen en een houten tuinhuisje met een praktische overkapping ernaast voor het stallen van bijvoorbeeld fietsen of scooters.
Algemeen:
- Zeer royaal, vrijstaand geschakeld herenhuis op een mooie woonlocatie nabij alle voorzieningen;
- De hal, living en keuken zijn voorzien van een Indiase leistenen tegelvloer inclusief vloerverwarming;
- Royale werk-/speel- of hobbykamer op de begane grond met eigen entree;
- Riante living met sfeervolle gashaard en erkerraam;
- Grote en lichte woon-/eetkeuken;
- Vier slaapkamers (oorspronkelijk vijf) met de eenvoudige mogelijkheid er weer vijf slaapkamers te realiseren;
- Complete badkamer;
- Voorzien van dak-, vloer- en muurisolatie alsmede hardhouten kozijnen met isolerende beglazing;
- Alarminstallatie aanwezig;
- Er is sprake van airconditioning (in de living én op de tweede verdieping);
- De brede achtertuin is gelegen op het heerlijk zonnige zuidoosten;
- De luxe terrasoverkapping aan de achterzijde is gerealiseerd in 2012;
- Het buitenschilderwerk is vernieuwd in 2020;
- Bouwjaar 2001;
- Perceeloppervlakte 245 m2;
- Kom gauw kijken naar dit interessante aanbod en laat u verrassen!
Advies over de juiste hypotheek?
Bel Robert: 040-2927575
Informatie downloaden van Pegbroekenlaan 18
Kenmerken
Overdracht
| Status | Verkocht |
| Vraagprijs | € 625.000 k.k. |
| Aanvaarding | In overleg |
Bouwvorm
| Soort Woning | Eengezinswoning |
| Type Woning | Geschakelde woning |
| Bouwjaar | 2001 |
| Bouwvorm | Bestaande bouw |
| Woonoppervlakte | 183 m² |
| Perceeloppervlakte | 245 m² |
| Externe Bergruimte | 5 m² |
| Aantal Kamers | 7 |
| Aantal Slaapkamers | 4 |
| Aantal Woonlagen | 3 |
| Inhoud | 663 m³ |
| Cv Ketel Merk | Nefit ecomline hr |
| Cv Ketel Bouwjaar | 2001 |
Bergruimte
| Schuur/Berging | Vrijstaand hout |
Parkeergelegenheid
| Parkeerfaciliteiten | Openbaar parkeren, op eigen terrein |
Overig
| Onderhoud Binnen | Goed |
| Onderhoud Buiten | Goed |
| Huidige Bestemming | Woonruimte |
Kadaster
| Gemeente | Veldhoven |
| Sectie | C |
| Perceel | 4326 |
| Oppervlakte | 245 m² |
| Eigendomssituatie | Volle eigendom |