Waalstraat 124
5626 AV, Eindhoven
€ 225.000
k.k.
Omschrijving
- Bouwjaar 1921
- Woonoppervlakte 83 m²
- Aantal kamers 5
- Aantal slaapkamers 4
LET OP! VERKOOP BIJ INSCHRIJVING.
BIEDEN VANAF € 225.000,-- K.K.
Karakteristieke, half vrijstaande woning met veel potentie, gelegen op een ruim perceel aan de Waalstraat 124 in Eindhoven. Deze woning verkeert in een eenvoudige staat en dient volledig gerenoveerd te worden, maar biedt daarmee een uitstekende kans voor de handige koper of investeerder om hier een geheel eigen invulling aan te geven.
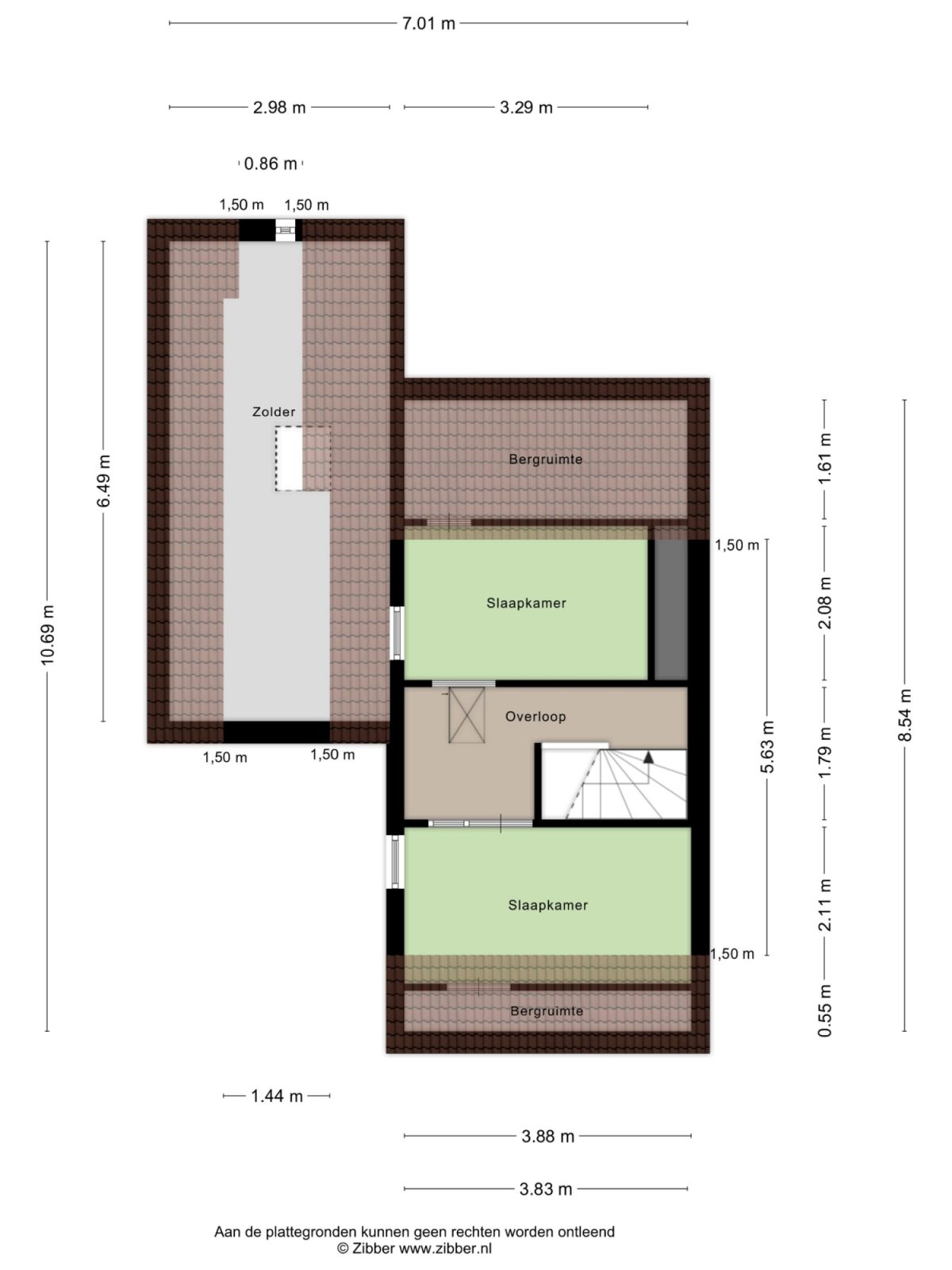
De begane grond bestaat uit een woonkamer aan de achterzijde, een separate keuken, badkamer en diverse bergruimten. Daarnaast is er een extra kamer aanwezig aan de voorzijde, die bijvoorbeeld kan dienen als slaap- of werkkamer. Op de verdieping bevinden zich twee slaapkamers en praktische bergruimten onder de schuine kap, evenals een zolderruimte die via een vlizotrap bereikbaar is.
De woning beschikt over een ruime achterplaats en een vrije ligging aan de voorzijde met groen en een rustige woonomgeving. Voorzieningen zoals winkels, scholen en uitvalswegen zijn op korte afstand gelegen.
Bestemming: Wonen + Cultuurhistorisch waardevol. Zie bijgevoegde bestemmingsomschrijving in Move.nl.
De boom in de voortuin wordt als waardevol beschouwd.
Verkoop geschiedt bij inschrijving. Een unieke kans voor wie op zoek is naar een woning om volledig naar eigen wens te renoveren en in te richten.
Condities:
Verkoop geschiedt zonder enige vorm van garantie "As is where is" (wat u ziet is wat u koopt).
BIEDEN VANAF € 225.000,-- K.K.
Karakteristieke, half vrijstaande woning met veel potentie, gelegen op een ruim perceel aan de Waalstraat 124 in Eindhoven. Deze woning verkeert in een eenvoudige staat en dient volledig gerenoveerd te worden, maar biedt daarmee een uitstekende kans voor de handige koper of investeerder om hier een geheel eigen invulling aan te geven.
De begane grond bestaat uit een woonkamer aan de achterzijde, een separate keuken, badkamer en diverse bergruimten. Daarnaast is er een extra kamer aanwezig aan de voorzijde, die bijvoorbeeld kan dienen als slaap- of werkkamer. Op de verdieping bevinden zich twee slaapkamers en praktische bergruimten onder de schuine kap, evenals een zolderruimte die via een vlizotrap bereikbaar is.
De woning beschikt over een ruime achterplaats en een vrije ligging aan de voorzijde met groen en een rustige woonomgeving. Voorzieningen zoals winkels, scholen en uitvalswegen zijn op korte afstand gelegen.
Bestemming: Wonen + Cultuurhistorisch waardevol. Zie bijgevoegde bestemmingsomschrijving in Move.nl.
De boom in de voortuin wordt als waardevol beschouwd.
Verkoop geschiedt bij inschrijving. Een unieke kans voor wie op zoek is naar een woning om volledig naar eigen wens te renoveren en in te richten.
Condities:
Verkoop geschiedt zonder enige vorm van garantie "As is where is" (wat u ziet is wat u koopt).
Advies over de juiste hypotheek?
Bel Robert: 040-2927575
Informatie downloaden van Waalstraat 124
Informatie downloaden van Waalstraat 124
Kenmerken
Overdracht
| Status | Onder bod |
| Vraagprijs | € 225.000 k.k. |
| Aanvaarding | In overleg |
Bouwvorm
| Soort Woning | Woonboerderij |
| Type Woning | Twee onder een kapwoning |
| Bouwjaar | 1921 |
| Bouwvorm | Bestaande bouw |
| Woonoppervlakte | 83 m² |
| Perceeloppervlakte | 680 m² |
| Overige Inpandige Ruimte | 13 m² |
| Externe Bergruimte | 10 m² |
| Aantal Kamers | 5 |
| Aantal Slaapkamers | 4 |
| Aantal Woonlagen | 3 |
| Inhoud | 337 m³ |
Bergruimte
| Schuur/Berging | Vrijstaand hout |
Parkeergelegenheid
| Parkeerfaciliteiten | Op eigen terrein |
Overig
| Onderhoud Binnen | Slecht |
| Onderhoud Buiten | Slecht |
| Huidige Bestemming | Woonruimte |
Kadaster
| Gemeente | Woensel |
| Sectie | T |
| Perceel | 2805 |
| Oppervlakte | 680 m² |
| Eigendomssituatie | Volle eigendom |