Venuslaan 291
5632 HG, Eindhoven
€ 385.000
k.k.
Dit object is
Verkocht
Omschrijving
- Bouwjaar 1974
- Woonoppervlakte 97 m²
- Aantal kamers 4
- Aantal slaapkamers 3
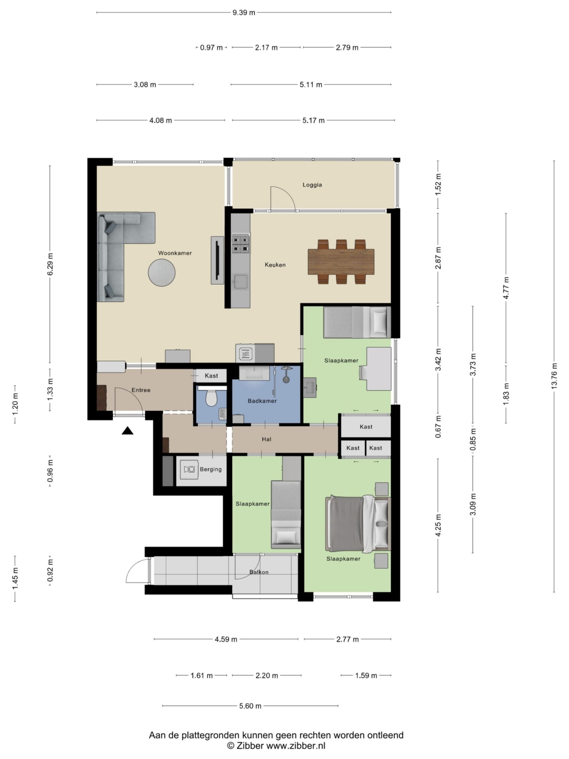
Ruim 4-kamerappartement op de 7e verdieping met balkon, loggia en berging – Eindhoven
Op een aantrekkelijke locatie in Eindhoven-Noord, vlak bij Winkelcentrum Woensel en de uitvalswegen, vindt u dit royale 4-kamerappartement van ca. 97 m² woonoppervlakte. Het appartement is gelegen op de 7e verdieping van een verzorgd appartementencomplex en biedt naast een prettige indeling ook een balkon, een loggia op de zonzijde en een eigen berging op de begane grond.
Indeling:
Begane grond
Centrale entree met bellentableau, brievenbussen, trapopgang en liftinstallatie
Toegang tot de individuele bergingen
Appartement – 7e verdieping:
Entree naar ruime hal met laminaatvloer en garderobenis.
Toegang tot de woonkamer en doorloop naar de slaapvertrekken en de afzonderlijke berging met opstelling was- en droogapparatuur.
Woonkamer
Royale living met veel lichtinval dankzij de grote raampartijen voorzien van laminaatvloer en elektrisch bedienbare zonwering. In open verbinding met de eetkeuken.
Eetkeuken
Open keuken met moderne fraaie keukeninrichting en voorzien van gaskookplaat, afzuigkap, combi oven/magnetron en quooker.
Vanuit de keuken toegang tot de loggia op de zonzijde, met schuiframen en elektrisch zonnescherm
Hal/gang
Deze biedt toegang tot drie slaapkamers, toilet en de badkamer. Met ruime inpandige berging ten behoeve van provisieruimte. Tevens hier de aansluitingen voor was- en droogapparatuur.
Toilet
Geheel betegeld modern toilet met hangend closet en voorzien van een fonteintje.
Badkamer
Modern geheel betegelde badkamer voorzien van een inloopdouche, een designradiator en een vaste wastafel in meubel.
Slaapkamers
Slaapkamer 1: voorzien van laminaatvloer en deur naar een klein balkon;
(Ouder)slaapkamer 2: voorzien van laminaatvloer en inbouwkasten;
Slaapkamer 3: eveneens voorzien van laminaatvloer, inbouwkasten alsmede een vaste wastafel in meubel.
Bijzonderheden:
- Gelegen op de 7e verdieping met fraai uitzicht;
- Ruime indeling met drie slaapkamers;
- Beschikt over zowel een balkon als een loggia op de zonzijde;
- Recentelijk geheel gerenoveerd;
- Alle ramen zijn voorzien van dubbele beglazing;
- Eigen berging op de begane grond;
- Centrale ligging nabij voorzieningen en uitvalswegen;
- Bouwjaar: ca. 1974;
- Woonoppervlakte: ca. 97 m²;
- De servicekosten bedragen € 293,-- inclusief voorschot stookkosten.
Maak snel een afspraak voor een bezichtiging van dit verzorgde royale appartement!
Op een aantrekkelijke locatie in Eindhoven-Noord, vlak bij Winkelcentrum Woensel en de uitvalswegen, vindt u dit royale 4-kamerappartement van ca. 97 m² woonoppervlakte. Het appartement is gelegen op de 7e verdieping van een verzorgd appartementencomplex en biedt naast een prettige indeling ook een balkon, een loggia op de zonzijde en een eigen berging op de begane grond.
Indeling:
Begane grond
Centrale entree met bellentableau, brievenbussen, trapopgang en liftinstallatie
Toegang tot de individuele bergingen
Appartement – 7e verdieping:
Entree naar ruime hal met laminaatvloer en garderobenis.
Toegang tot de woonkamer en doorloop naar de slaapvertrekken en de afzonderlijke berging met opstelling was- en droogapparatuur.
Woonkamer
Royale living met veel lichtinval dankzij de grote raampartijen voorzien van laminaatvloer en elektrisch bedienbare zonwering. In open verbinding met de eetkeuken.
Eetkeuken
Open keuken met moderne fraaie keukeninrichting en voorzien van gaskookplaat, afzuigkap, combi oven/magnetron en quooker.
Vanuit de keuken toegang tot de loggia op de zonzijde, met schuiframen en elektrisch zonnescherm
Hal/gang
Deze biedt toegang tot drie slaapkamers, toilet en de badkamer. Met ruime inpandige berging ten behoeve van provisieruimte. Tevens hier de aansluitingen voor was- en droogapparatuur.
Toilet
Geheel betegeld modern toilet met hangend closet en voorzien van een fonteintje.
Badkamer
Modern geheel betegelde badkamer voorzien van een inloopdouche, een designradiator en een vaste wastafel in meubel.
Slaapkamers
Slaapkamer 1: voorzien van laminaatvloer en deur naar een klein balkon;
(Ouder)slaapkamer 2: voorzien van laminaatvloer en inbouwkasten;
Slaapkamer 3: eveneens voorzien van laminaatvloer, inbouwkasten alsmede een vaste wastafel in meubel.
Bijzonderheden:
- Gelegen op de 7e verdieping met fraai uitzicht;
- Ruime indeling met drie slaapkamers;
- Beschikt over zowel een balkon als een loggia op de zonzijde;
- Recentelijk geheel gerenoveerd;
- Alle ramen zijn voorzien van dubbele beglazing;
- Eigen berging op de begane grond;
- Centrale ligging nabij voorzieningen en uitvalswegen;
- Bouwjaar: ca. 1974;
- Woonoppervlakte: ca. 97 m²;
- De servicekosten bedragen € 293,-- inclusief voorschot stookkosten.
Maak snel een afspraak voor een bezichtiging van dit verzorgde royale appartement!
Advies over de juiste hypotheek?
Bel Robert: 040-2927575
Informatie downloaden van Venuslaan 291
Informatie downloaden van Venuslaan 291
Kenmerken
Overdracht
| Status | Verkocht |
| Vraagprijs | € 385.000 k.k. |
| Aanvaarding | In overleg |
| Servicekosten | € 293 |
Bouwvorm
| Bouwjaar | 1974 |
| Bouwvorm | Bestaande bouw |
| Woonoppervlakte | 97 m² |
| Externe Bergruimte | 7 m² |
| Aantal Kamers | 4 |
| Aantal Slaapkamers | 3 |
| Aantal Woonlagen | 1 |
| Inhoud | 319 m³ |
Bergruimte
| Schuur/Berging | Inpandig |
Parkeergelegenheid
| Parkeerfaciliteiten | Openbaar parkeren |
Overig
| Onderhoud Binnen | Goed |
| Onderhoud Buiten | Goed |
| Huidige Bestemming | Woonruimte |
Kadaster
| Gemeente | Woensel |
| Sectie | L |
| Perceel | 3267 |
| Eigendomssituatie | Volle eigendom |