Van Uffelen makelaars Eindhoven

Alard du Hamelstraat 24

5622 CD, Eindhoven
€ 549.000 k.k.

Interesse in deze woning?

Alard du Hamelstraat 24 hoofdfoto

Omschrijving

  • Bouwjaar 1938
  • Woonoppervlakte 130 m²
  • Aantal kamers 4
  • Aantal slaapkamers 3
Aan een karakteristieke straat in Eindhoven ligt deze charmante en goed onderhouden woning met een warme uitstraling en een prettige indeling. De woning combineert authentieke details met hedendaags woongebruik en beschikt over een sfeervolle living, moderne keuken, ruime badkamer, meerdere slaapkamers en een praktische zolder met dakkapel. De zonnige achtertuin met berging maakt het geheel compleet.

Begane grond
Via de entree kom je in de hal met vernieuwde meterkast en trapopgang. Vanuit hier betreed je de woonkamer, waar direct de sfeer en het karakter opvallen. De doorzonliving is heerlijk licht dankzij de grote raampartijen en beschikt over openslaande tuindeuren naar de achtertuin.

De ruimte biedt volop mogelijkheden voor een royale zit- en eethoek en kenmerkt zich door een warme uitstraling en prettige lichtinval gedurende de dag.

De keuken bevindt zich aan de achterzijde en is uitgevoerd met inbouwapparatuur: inductie kookplaat met een interne afzuiging, vaatwasser, combi-oven, koelkast en een natuurstenen werkblad. Vanuit hier is er eveneens directe toegang tot de tuin, alsmede toegang tot de verdiepte kelderkast met legplanken.

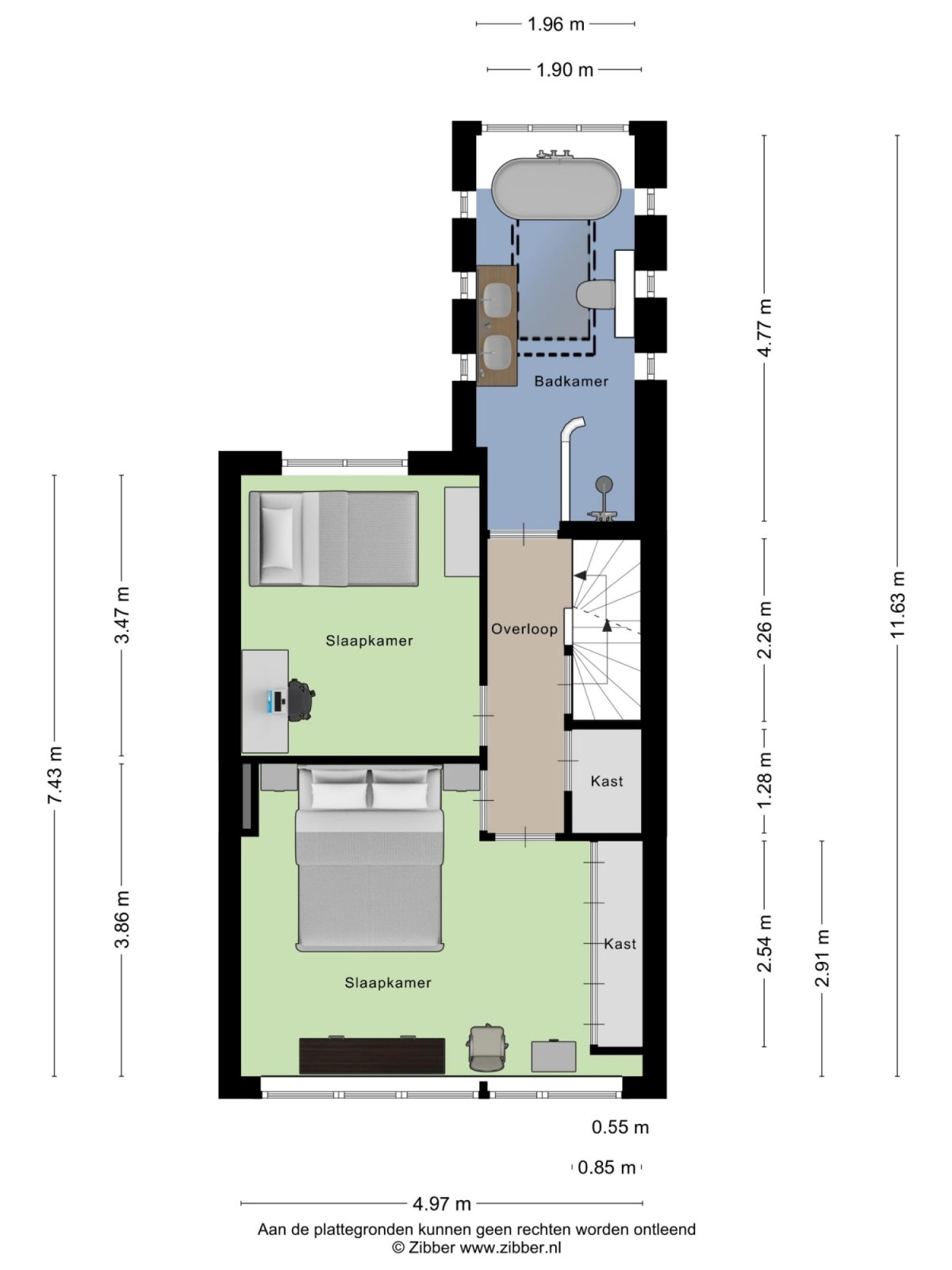
Eerste verdieping
Op de eerste verdieping bevinden zich twee ruime slaapkamers (voorheen waren dit 3 slaapkamers) en een complete badkamer. De slaapkamers zijn goed bemeten en beschikken over een fijne lichtinval. De badkamer is royaal opgezet en voorzien van een ligbad, ruime inloopdouche met regendouche en handdouche, toilet en een dubbele wastafel met meubel.

Tweede verdieping
De ruime en lichte voorzolder is voorzien van veel bergruimte en aansluiting voor de wasapparatuur. De tweede verdieping biedt tevens een extra slaapkamer en praktische bergruimte. De aanwezige dakkapel zorgt voor extra ruimte en maakt deze verdieping volwaardig bruikbaar.

Zolder
Via een vlizotrap is de bergzolder bereikbaar, ideaal voor het opbergen van spullen. Hier is ook de opstelling van de c.v.-ketel geplaatst.

Buitenruimte
De achtertuin is zonnig en verzorgd aangelegd met een combinatie van groen en bestrating. Er zijn meerdere zitplekken mogelijk, waardoor je op verschillende momenten van de dag van de zon kunt genieten. Achterin de tuin bevindt zich een vrijstaande berging.

Ligging
De woning is gelegen in een rustige en karakteristieke straat met een prettig woonklimaat. In de directe omgeving bevinden zich diverse voorzieningen zoals winkels, scholen, speelgelegenheden en groen. Daarnaast zijn uitvalswegen en het stadscentrum eenvoudig bereikbaar.

ALGEMEEN:
- Karakteristieke en sfeervolle woning;
- Doorzonliving met fraaie lichtinval;
- Openslaande tuindeuren naar de achtertuin;
- Zonnige en verzorgde achtertuin met berging;
- Keuken met inbouwapparatuur en natuurstenen werkblad;
- Ruime en complete badkamer;
- 3 Slaapkamers;
- Dakkapel op de tweede verdieping;
- Vlizotrap naar praktische bergzolder;
- Vernieuwde groepenkast;
- Verdiepte kelder met legplanken;
- Gelegen in rustige en karakteristieke straat;
- Nabij diverse voorzieningen zoals winkels, scholen en aansluiting diverse snelwegen.
Advies over de juiste hypotheek? Bel Robert: 040-2927575
Van Uffelen Robert
Alard du Hamelstraat 24 foto
Alard du Hamelstraat 24 foto 2
Alard du Hamelstraat 24 foto 3
Alard du Hamelstraat 24 foto 4
Alard du Hamelstraat 24 foto 5
Alard du Hamelstraat 24 foto 6
Alard du Hamelstraat 24 foto 7
Alard du Hamelstraat 24 foto 8
Alard du Hamelstraat 24 foto 9
Alard du Hamelstraat 24 foto 10
Alard du Hamelstraat 24 foto 11
Alard du Hamelstraat 24 foto 12
Alard du Hamelstraat 24 foto 13
Alard du Hamelstraat 24 foto 14
Alard du Hamelstraat 24 foto 15
Alard du Hamelstraat 24 foto 16
Alard du Hamelstraat 24 foto 17
Alard du Hamelstraat 24 foto 18
Alard du Hamelstraat 24 foto 19
Alard du Hamelstraat 24 foto 20
Alard du Hamelstraat 24 foto 21
Alard du Hamelstraat 24 foto 22
Alard du Hamelstraat 24 foto 23
Alard du Hamelstraat 24 foto 24
Alard du Hamelstraat 24 foto 25
Alard du Hamelstraat 24 foto 26
Alard du Hamelstraat 24 foto 27
Alard du Hamelstraat 24 foto 28
Alard du Hamelstraat 24 foto 29
Alard du Hamelstraat 24 foto 30
Alard du Hamelstraat 24 foto 31
Alard du Hamelstraat 24 foto 32
Alard du Hamelstraat 24 foto 33
Alard du Hamelstraat 24 foto 34
Alard du Hamelstraat 24 foto 35
Alard du Hamelstraat 24 foto 36
Alard du Hamelstraat 24 foto 37
Alard du Hamelstraat 24 foto
Alard du Hamelstraat 24 foto 2
Alard du Hamelstraat 24 foto 3
Alard du Hamelstraat 24 foto 4
Alard du Hamelstraat 24 foto 5
Alard du Hamelstraat 24 foto 6
Alard du Hamelstraat 24 foto 7
Alard du Hamelstraat 24 foto 8
Alard du Hamelstraat 24 foto 9
Alard du Hamelstraat 24 foto 10
Alard du Hamelstraat 24 foto 11
Alard du Hamelstraat 24 foto 12
Alard du Hamelstraat 24 foto 13
Alard du Hamelstraat 24 foto 14
Alard du Hamelstraat 24 foto 15
Alard du Hamelstraat 24 foto 16
Alard du Hamelstraat 24 foto 17
Alard du Hamelstraat 24 foto 18
Alard du Hamelstraat 24 foto 19
Alard du Hamelstraat 24 foto 20
Alard du Hamelstraat 24 foto 21
Alard du Hamelstraat 24 foto 22
Alard du Hamelstraat 24 foto 23
Alard du Hamelstraat 24 foto 24
Alard du Hamelstraat 24 foto 25
Alard du Hamelstraat 24 foto 26
Alard du Hamelstraat 24 foto 27
Alard du Hamelstraat 24 foto 28
Alard du Hamelstraat 24 foto 29
Alard du Hamelstraat 24 foto 30
Alard du Hamelstraat 24 foto 31
Alard du Hamelstraat 24 foto 32
Alard du Hamelstraat 24 foto 33
Alard du Hamelstraat 24 foto 34
Alard du Hamelstraat 24 foto 35
Alard du Hamelstraat 24 foto 36
Alard du Hamelstraat 24 foto 37
Alard du Hamelstraat 24 plattegrond
Alard du Hamelstraat 24 plattegrond 2
Alard du Hamelstraat 24 plattegrond 3
Alard du Hamelstraat 24 plattegrond 4
Alard du Hamelstraat 24 plattegrond 5
Alard du Hamelstraat 24 plattegrond
Alard du Hamelstraat 24 plattegrond 2
Alard du Hamelstraat 24 plattegrond 3
Alard du Hamelstraat 24 plattegrond 4
Alard du Hamelstraat 24 plattegrond 5
Alard du Hamelstraat 24 hoofdfoto
Temp

Informatie downloaden van Alard du Hamelstraat 24

Kenmerken

Overdracht

Status Beschikbaar
Vraagprijs € 549.000 k.k.
Aanvaarding In overleg

Bouwvorm

Soort Woning Eengezinswoning
Type Woning Tussenwoning
Bouwjaar 1938
Bouwvorm Bestaande bouw
Woonoppervlakte 130 m²
Perceeloppervlakte 155 m²
Overige Inpandige Ruimte 4 m²
Externe Bergruimte 10 m²
Aantal Kamers 4
Aantal Slaapkamers 3
Aantal Woonlagen 4
Inhoud 474 m³

Bergruimte

Schuur/Berging Vrijstaand steen

Parkeergelegenheid

Parkeerfaciliteiten Openbaar parkeren

Overig

Onderhoud Binnen Goed
Onderhoud Buiten Goed
Huidige Bestemming Woonruimte

Kadaster

Gemeente Woensel
Sectie H
Perceel 228
Oppervlakte 155 m²
Eigendomssituatie Volle eigendom

Locatie

Benieuwd naar jouw mogelijkheden?

We zijn benieuwd naar je verhaal!

Heb je een vraag of wil je een afspraak met ons maken? Je kunt ons bellen of stuur een Whatsapp-bericht. Je hoort snel van ons!