St Rochusstraat 14
5611 RH, Eindhoven
€ 569.000
k.k.
Interesse in deze woning?
-
Plan een bezichtiging
St Rochusstraat 145611 RH, Eindhoven -
Breng een bod uit op Move.nl
Bod plaatsen
Dit kan via het Move.nl platform.
Omschrijving
- Bouwjaar 1922
- Woonoppervlakte 126 m²
- Aantal kamers 7
- Aantal slaapkamers 4
Aan de St. Rochusstraat 14 wacht een verrassend ruime woning in het hart van Eindhoven. Verspreid over drie verdiepingen vind je sfeer en kwaliteit in elke hoek. Met vier slaapkamers, twee moderne badkamers en een royaal dakterras met vrij uitzicht is er plek voor iedereen. Wonen in het bruisende stadscentrum was nog nooit zo stijlvol én praktisch. De woning is gelegen binnen de ring van Eindhoven op korte afstand van diverse uitvalswegen richting A2, N2 en A67 en op korte afstand van het openbaar bus-/en treinvervoer. Kortom een verrassende ruimte woning op een leuke locatie in de gewilde Rochusbuurt.
INDELING
Begane grond
Entree/hal:
De entree/hal met groepenkast begeleidt u naar de eerste verdieping van de woning.
Eerste verdieping
Via de overloop bereikt u de woonkamer, open keuken en was- en toiletruimte. Via een vaste trap heeft u toegang tot de tweede verdieping.
Wasruimte/badkamer
Praktische ruimte met inbouwspots, tegelvloer en opstelling ten behoeve van de wasapparatuur. Indien gewenst kunt u hier een extra badkamer realiseren.
Toilet
De toiletruimte is gedeeltelijk betegeld en voorzien van een wandcloset en inbouwspot.
Woonkamer
Riante eet-/woonkamer welke is opgedeeld in 2 (open) ruimtes. Er ligt een fraaie houten vloer in visgraat motief, zowel aan voor- als achterzijde zijn er ramen welke zorgen voor volop natuurlijk daglichttoetreding en er zijn inbouwspots. Er is een open verbinding met de keuken.
Keuken
De keuken heeft een grijze marmeren tegelvloer en heeft een natuurlijke lichtinval dankzij de erker aan de voorzijde. Daarnaast zijn er inbouwspots. De keuken in rechte opstelling is uitgerust met een 4-pits gaskookplaat, afzuigkap, oven, vaatwasser, spoelbak en diverse elektra punten.
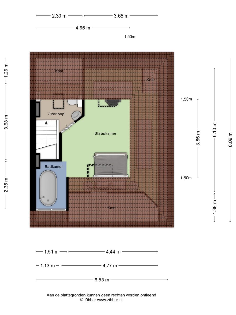
Tweede Verdieping:
Overloop
De overloop is afgewerkt met een een houten vloer in visgraat motief en biedt toegang tot 3 slaapkamers, de badkamer en de trapopgang naar de derde verdieping.
Badkamer
De gedeeltelijk betegelde badkamer is voorzien van toilet, wastafel met meubel, douchecabine met thermostaatkraan, handdoeken radiator en inbouwspots. Een deur biedt toegang tot het dakterras.
Dakterras
Fraai aangelegd dakterras, gesitueerd op het westen, waar u de gehele dag van de zon geniet! U heeft een vrij uitzicht en het terras beschikt over bestrating, kunstgras, buitenkraantje, buitenverlichting en diverse elektra punten.
Slaapkamer 1
Royale ouderslaapkamer, gesitueerd aan de achterzijde van de woning. De slaapkamer is voorzien van een groot raam met vrij uitzicht en een praktische ingebouwde kast.
Slaapkamer 2
Riante slaapkamer, gelegen aan de voorzijde van de woning. Deze slaapkamer heeft een groot raam, inbouwspots, een wastafel en een praktische ingebouwde kast.
Slaapkamer 3
Deze slaapkamer is voorzien van een erker en inbouwspots en is gesitueerd aan de voorzijde van de woning. Tevens beschikt deze slaapkamer over een aansluiting voor een wastafel en gas.
Derde verdieping
Via vaste trapopgang bereikt u de derde verdieping. De overloop is voorzien van de opstelling van de cv-combiketel en een dakvenster voor de daglichttoetreding. Een 3e toilet, vaste wastafel en inbouwspots zijn aanwezig. Via de overloop bereikt u slaapkamer 4 / ensuite badkamer.
Slaapkamer 4 / ensuite badkamer
Zeer ruime slaapkamer met fraai zicht op spantconstructie en volledige nokhoogte. De slaapkamer is voorzien van 2 dakramen (voor-/achterzijde), een dakkapel, een vrijstaand duobad en extra bergruimte middels vliering boven het trapgat en onder de dakschuinte achter schuifwanden.
Berging
Aan de achterzijde van de woning heeft u toegang tot een eigen separate (fietsen)berging. De fietsenberging is via een achterom bereikbaar.
Locatie
De woning is gelegen in de gewilde woonomgeving Rochusbuurt, binnen de ring van Eindhoven. Op enkele minuten loop-/fietsafstand is het stadscentrum Eindhoven gelegen, evenals het openbaar busvervoer en treinstation Eindhoven-Centraal. Diverse winkels, scholen, sportfaciliteiten en supermarkten zijn eveneens op steenworp afstand vindbaar.
Kenmerken:
- Gelegen in de gewilde Rochusbuurt, op enkele minuten loopafstand van het stadscentrum van Eindhoven;
- 4 ruime slaapkamers;
- 2 badkamers;
- Energielabel A, ramen voorzien van dubbele beglazing;
- Eigen separate (fietsen)berging, bereikbaar via achterom;
- Woonoppervlakte ca. 126 m2
- Ruim dakterras, gesitueerd op het westen met vrij uitzicht ca. 27 m2;
- Supermarkten, scholen, sportfaciliteiten en kinderopvang op loopafstand;
- Parkeren met parkeervergunning, betaald parkeren;
- Uitstekende bereikbaarheid van uitvalswegen A2 en A67 en goede verbindingen met het openbaar vervoer; bus en trein dichtbij.
INDELING
Begane grond
Entree/hal:
De entree/hal met groepenkast begeleidt u naar de eerste verdieping van de woning.
Eerste verdieping
Via de overloop bereikt u de woonkamer, open keuken en was- en toiletruimte. Via een vaste trap heeft u toegang tot de tweede verdieping.
Wasruimte/badkamer
Praktische ruimte met inbouwspots, tegelvloer en opstelling ten behoeve van de wasapparatuur. Indien gewenst kunt u hier een extra badkamer realiseren.
Toilet
De toiletruimte is gedeeltelijk betegeld en voorzien van een wandcloset en inbouwspot.
Woonkamer
Riante eet-/woonkamer welke is opgedeeld in 2 (open) ruimtes. Er ligt een fraaie houten vloer in visgraat motief, zowel aan voor- als achterzijde zijn er ramen welke zorgen voor volop natuurlijk daglichttoetreding en er zijn inbouwspots. Er is een open verbinding met de keuken.
Keuken
De keuken heeft een grijze marmeren tegelvloer en heeft een natuurlijke lichtinval dankzij de erker aan de voorzijde. Daarnaast zijn er inbouwspots. De keuken in rechte opstelling is uitgerust met een 4-pits gaskookplaat, afzuigkap, oven, vaatwasser, spoelbak en diverse elektra punten.
Tweede Verdieping:
Overloop
De overloop is afgewerkt met een een houten vloer in visgraat motief en biedt toegang tot 3 slaapkamers, de badkamer en de trapopgang naar de derde verdieping.
Badkamer
De gedeeltelijk betegelde badkamer is voorzien van toilet, wastafel met meubel, douchecabine met thermostaatkraan, handdoeken radiator en inbouwspots. Een deur biedt toegang tot het dakterras.
Dakterras
Fraai aangelegd dakterras, gesitueerd op het westen, waar u de gehele dag van de zon geniet! U heeft een vrij uitzicht en het terras beschikt over bestrating, kunstgras, buitenkraantje, buitenverlichting en diverse elektra punten.
Slaapkamer 1
Royale ouderslaapkamer, gesitueerd aan de achterzijde van de woning. De slaapkamer is voorzien van een groot raam met vrij uitzicht en een praktische ingebouwde kast.
Slaapkamer 2
Riante slaapkamer, gelegen aan de voorzijde van de woning. Deze slaapkamer heeft een groot raam, inbouwspots, een wastafel en een praktische ingebouwde kast.
Slaapkamer 3
Deze slaapkamer is voorzien van een erker en inbouwspots en is gesitueerd aan de voorzijde van de woning. Tevens beschikt deze slaapkamer over een aansluiting voor een wastafel en gas.
Derde verdieping
Via vaste trapopgang bereikt u de derde verdieping. De overloop is voorzien van de opstelling van de cv-combiketel en een dakvenster voor de daglichttoetreding. Een 3e toilet, vaste wastafel en inbouwspots zijn aanwezig. Via de overloop bereikt u slaapkamer 4 / ensuite badkamer.
Slaapkamer 4 / ensuite badkamer
Zeer ruime slaapkamer met fraai zicht op spantconstructie en volledige nokhoogte. De slaapkamer is voorzien van 2 dakramen (voor-/achterzijde), een dakkapel, een vrijstaand duobad en extra bergruimte middels vliering boven het trapgat en onder de dakschuinte achter schuifwanden.
Berging
Aan de achterzijde van de woning heeft u toegang tot een eigen separate (fietsen)berging. De fietsenberging is via een achterom bereikbaar.
Locatie
De woning is gelegen in de gewilde woonomgeving Rochusbuurt, binnen de ring van Eindhoven. Op enkele minuten loop-/fietsafstand is het stadscentrum Eindhoven gelegen, evenals het openbaar busvervoer en treinstation Eindhoven-Centraal. Diverse winkels, scholen, sportfaciliteiten en supermarkten zijn eveneens op steenworp afstand vindbaar.
Kenmerken:
- Gelegen in de gewilde Rochusbuurt, op enkele minuten loopafstand van het stadscentrum van Eindhoven;
- 4 ruime slaapkamers;
- 2 badkamers;
- Energielabel A, ramen voorzien van dubbele beglazing;
- Eigen separate (fietsen)berging, bereikbaar via achterom;
- Woonoppervlakte ca. 126 m2
- Ruim dakterras, gesitueerd op het westen met vrij uitzicht ca. 27 m2;
- Supermarkten, scholen, sportfaciliteiten en kinderopvang op loopafstand;
- Parkeren met parkeervergunning, betaald parkeren;
- Uitstekende bereikbaarheid van uitvalswegen A2 en A67 en goede verbindingen met het openbaar vervoer; bus en trein dichtbij.
Advies over de juiste hypotheek?
Bel Robert: 040-2927575
Informatie downloaden van St Rochusstraat 14
Informatie downloaden van St Rochusstraat 14
Kenmerken
Overdracht
| Status | Beschikbaar |
| Vraagprijs | € 569.000 k.k. |
| Aanvaarding | In overleg |
Bouwvorm
| Bouwjaar | 1922 |
| Bouwvorm | Bestaande bouw |
| Woonoppervlakte | 126 m² |
| Aantal Kamers | 7 |
| Aantal Slaapkamers | 4 |
| Aantal Woonlagen | 4 |
| Inhoud | 415 m³ |
Bergruimte
| Schuur/Berging | Vrijstaand hout |
Parkeergelegenheid
| Parkeerfaciliteiten | Betaald parkeren, parkeervergunningen |
Overig
| Onderhoud Binnen | Goed |
| Onderhoud Buiten | Goed |
| Huidige Bestemming | Woonruimte |
Kadaster
| Gemeente | Stratum |
| Sectie | E |
| Perceel | 6237 |
| Eigendomssituatie | Volle eigendom |