Van Uffelen makelaars Eindhoven

Dommelhoefstraat 44

5613 EM, Eindhoven
€ 795.000 k.k.

Interesse in deze woning?

Dommelhoefstraat 44 hoofdfoto

Omschrijving

Openhuis

Op 27 november 2025 van 16:00 tot 17:30

  • Bouwjaar 1950
  • Woonoppervlakte 146 m²
  • Aantal kamers 6
  • Aantal slaapkamers 4
Wonen op een toplocatie aan het Villapark en direct bij het het stadscentrum van Eindhoven!

Deze meervoudig uitgebouwde, modern uitgevoerde en karakteristieke hoekwoning heeft een fraaie en brede living met houten vloer, moderne gashaard en dubbel openslaande deuren naar de tuin, een moderne open leefkeuken met alle denkbare voorzieningen, 4 slaapkamers waarvan de masterbedroom met een eigen kleedkamer, dakterras op zonzijde en luxe open badkamer en-suite, separate moderne doucheruimte en in 2017 gebouwd kantoor/atelier/gastenverblijf met sanitairgedeelte en eigen entree in de achtertuin. De onder moderne architectuur aangelegde achtertuin is gesitueerd op het zonnige zuidwesten en heeft een afgesloten achterom. Er is een parkeerplaats op een afgesloten parkeerterrein. Het woonhuis biedt een heerlijke lichtinval en is modern en luxe uitgevoerd met fraaie karakteristieke details.
 
Via een brede, modern aangelegde voortuin is het woonhuis bereikbaar. De diepe hal is uitgevoerd met een houten, donker geoliede vloer, gedeeltelijk stucwerk wanden, een stucwerk plafond met ingebouwde lichtspotjes, een grote muurspiegel, vaste garderobekast, alarminstallatie, een verwarmingsradiator, toilet en gerenoveerde trapopgang naar de eerste verdieping. In de hal bevindt zich bovendien een verdiepte kelderkast.

De royale uitgebouwde living biedt een zee aan ruimte en beschikt over grote raampartijen met een prettige lichtinval. De living is uitgevoerd met een houten, donker geoliede vloer, stucwerk wanden, een stucwerk plafond met ingebouwde lichtspotjes, een moderne en brede gashaard (merk Barbas), ideale muurnis voor de televisie, 
diverse speakeraansluitingen, decorradiatoren, twee Velux lichtkoepels in het plafond en dubbel openslaande deuren naar de achtertuin (met ingebouwde plissé schuifhordeuren). Aan de living grenst een open leefkeuken.

De open keuken is een heerlijk onderdeel van de leefruimte. De moderne, witte hoogglans keukeninstallatie is voorzien van diverse onderkasten, enkele bovenkasten, soft-close laden, een natuurstenen werkblad, 5-pits gaskookplaat (inclusief wokbrander), brede rvs afzuigkap, combi-magnetron, oven en een Amerikaanse koelkast. Aan de andere zijde, grenzend aan de living bevindt zich een "werkeiland c.q. eetbar" met een spoelbak, Quooker, een in 2025 vernieuwde vaatwasser en ruimte voor enkele barkrukken. De keuken is bovendien uitgevoerd met een antracietkleurige tegelvloer en deur naar de tuin.

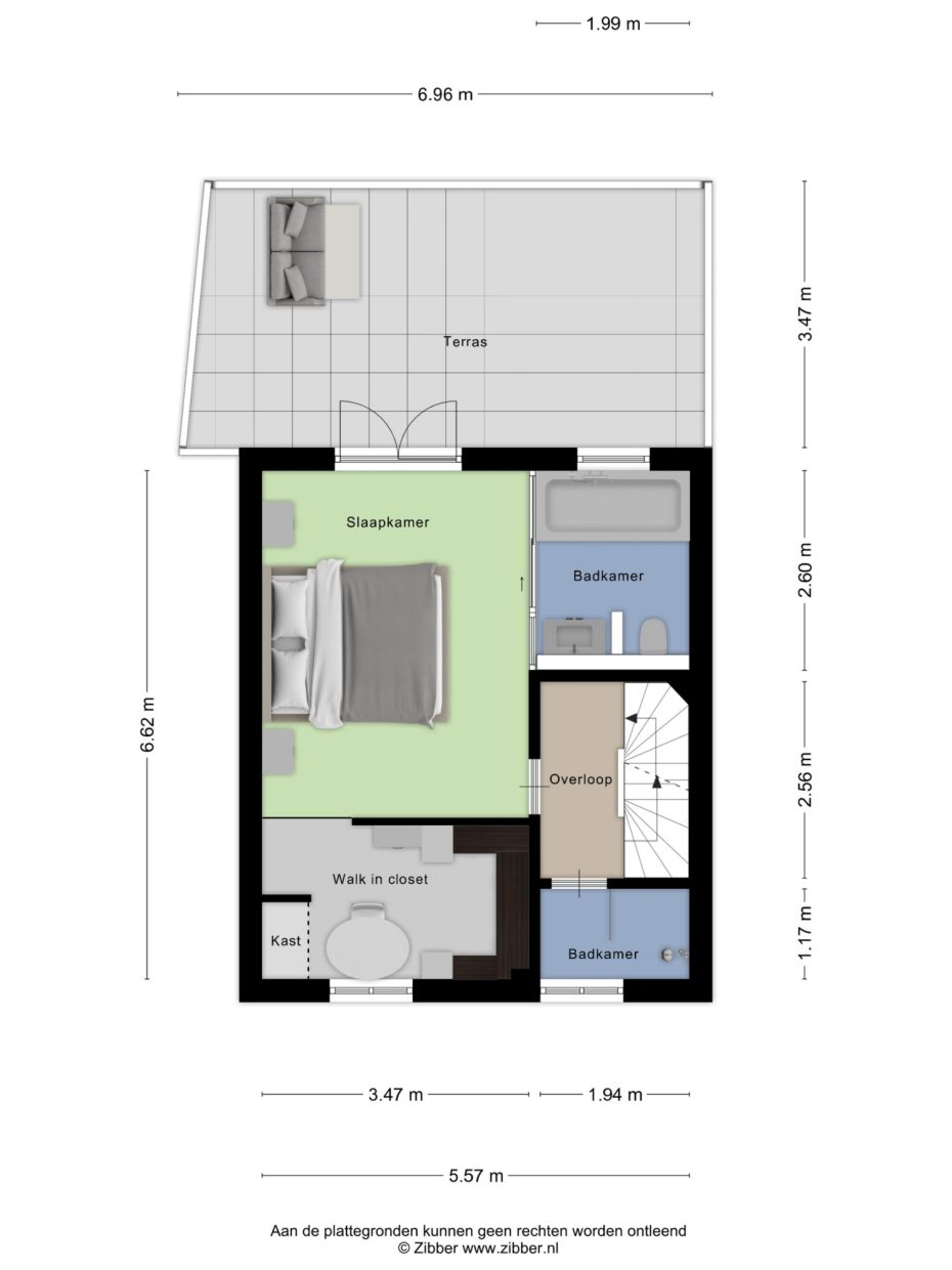
Eerste verdieping:
De overloop is afgewerkt met een eiken parketvloer, stucwerk wanden- en plafond en biedt toegang aan een zeer riante ouderslaapkamer met een eigen kleedkamer en luxe, open badkamer alsmede een moderne, separate doucheruimte. Thans zijn de vertrekken als open ruimtes gerealiseerd. De open badkamer is eenvoudig toegankelijk te maken vanaf de overloop. Bovendien is van de kleedkamer weer eenvoudig een extra slaapkamer te maken. 

Slaapkamer I:
Deze riante ouderslaapkamer is gelegen aan de achterzijde en uitgevoerd met een eiken parketvloer, stucwerk wanden, stucwerk plafond inclusief lichtspotjes, dubbel openslaande deuren naar een groot dakterras met fraaie witte (houten) shutters, horren alsmede een elektrisch bedienbaar rolluik.
Via de ouderslaapkamer is een ruim dakterras bereikbaar dat gesitueerd is op het zuidwesten.

Kleedkamer:
Deze heerlijke kleedkamer met walk-in kastruimte staat in half-open verbinding met de masterbedroom en is voorzien van op maat gemaakte kastruimte voor kleding (hang/- en legruimte) inclusief laden. De kleedkamer is gesitueerd aan de voorzijde en heeft een raampartij met een houten luik aan de binnenzijde en een stucwerk plafond met ingebouwde lichtspotjes.

Badkamer en-suite:
Direct aan de ouderslaapkamer is een fraaie, open badkamer gelegen welke thans in open verbinding staat met de masterbedroom. De moderne badkamer is voorzien van een vaste wastafel in meubel, diep ligbad (met jetstream en handdouche), tweede toilet met hangend closet alsmede een handdoekenradiator. De badkamer is gedeeltelijk betegeld en heeft een raam met witte houten shutter en een elektrisch bedienbaar rolluik.

Separate doucheruimte 
Een moderne en geheel betegelde doucheruimte welke is uitgevoerd met een brede inloopdouche (voorzien van een grote 2-persoons regendouche aan het plafond, extra handdouche en thermostaatkraan) en handdoekenradiator. De doucheruimte is gelegen aan de voorzijde en voorzien van een raampartij met prettige lichtinval en ventilatiemogelijkheden.

Tweede verdieping:
Slaapkamers:
Beide slaapkamers hebben een eiken parketvloer, stucwerk wanden- en plafond.
Slaapkamer 2: gelegen aan de achterzijde. Voorzien van een vaste wastafel, kleine dakkapel, een vaste kast en vaste legplanken.
Slaapkamer 3: gelegen aan de voorzijde. Voorzien van een dakkapel, drie vaste kasten (waarvan een kast met daarin de opstelling van de cv ketel) en een aansluiting voor de wasapparatuur.

Werkkamer:
Deze kamer is gelegen aan de achterzijde en eveneens voorzien van een eiken parketvloer, stucwerk wanden- en plafond. 

Tuin:
De brede, onder architectuur aangelegde voortuin heeft diverse beplanting, sierbestrating en volwassen leibomen. Een afsluitbaar sierhekwerk direct naast het woonhuis biedt toegang tot een pad c.q. achterom. 
De achtertuin is in 2017 onder moderne architectuur aangelegd en georiënteerd op het zonnige zuidwesten. In de diepe achtertuin bevinden zich modern betegelde borders, diverse beplanting, een gazon, buitenkraan met afvoerputje, een elektrisch bedienbare zonneluifel, een praktische houten werkkast en een achterom via een brede, houten poort naar een afsluitbaar pad. Achterin de achtertuin is een fraaie, moderne kantoor-/atelierruimte gelegen welke voor meerdere doeleinden geschikt is.

Kantoor-/atelierruimte:
Deze praktische ruimte met eigen entree is in 2017 gerealiseerd en geschikt voor meerdere doeleinden. Deze ruimte is ideaal geschikt als gastenverblijf of voor bijvoorbeeld kantoor of beroep aan huis, atelier, hobby of sport. Voorzien van een laminaatvloer, stucwerk wanden, een stucwerk plafond met ingebouwde lichtspotjes, een houten roomdivider, infrarood verwarming, een op maat gemaakt houten werkblad en een grote raampartij met fraai zicht op de achtertuin. Een apart sanitair gedeelte is uitgevoerd met een vaste wastafel in meubel, betegelde douchecabine (inclusief thermostaatkraan), derde toilet met hangend closet alsmede een boiler ten behoeve van warm water (merk Itho Daalderop, inhoud 50 liter, bouwjaar 2017).

Parkeerplaats:
Additioneel bij te kopen een parkeerplaats op afgesloten parkeerterrein (afstand circa 100 m).

ALGEMEEN:
- Hip en trendy wonen met alle voorzieningen van het stadscentrum;
- Het betreft een uitgebouwd, zeer goed onderhouden en licht woonhuis;
- Modern en karakteristiek met o.a. fraaie paneeldeuren;
- Uitgebouwde, brede living met een moderne gashaard en grote, open leefkeuken;
- De vaatwasser is vernieuwd in 2025;
- Beide verdiepingen zijn voorzien van een eiken parketvloer;
- Beide trappen zijn voorzien van traprenovatie en fraaie naturel (onbehandeld houten) trapleuningen;
- In de achtertuin bevindt zich een in 2017 nieuw gebouwd tuinhuis c.q. kantoor /atelier / gastenverblijf met eigen entree en sanitair;
- Diepe, zonnige achtertuin op het zuidwesten;
- De achtertuin is in 2017 onder architectuur aangelegd;
- Dakterras op de eerste verdieping eveneens op het zuidwesten;
- Er is sprake van muurisolatie en isolerende beglazing;
- Nieuw dak van 2022;
- Parkeerplaats op beveiligde parkeergelegenheid;
- Perceeloppervlakte 238 m2;
- Gunstige ligging op toplocatie in het Villapark direct bij het centrum van Eindhoven;
- Deze woning is absoluut een bezichtiging waard. Laat u verrassen!
Advies over de juiste hypotheek? Bel Robert: 040-2927575
Van Uffelen Robert
Dommelhoefstraat 44 foto
Dommelhoefstraat 44 foto 2
Dommelhoefstraat 44 foto 3
Dommelhoefstraat 44 foto 4
Dommelhoefstraat 44 foto 5
Dommelhoefstraat 44 foto 6
Dommelhoefstraat 44 foto 7
Dommelhoefstraat 44 foto 8
Dommelhoefstraat 44 foto 9
Dommelhoefstraat 44 foto 10
Dommelhoefstraat 44 foto 11
Dommelhoefstraat 44 foto 12
Dommelhoefstraat 44 foto 13
Dommelhoefstraat 44 foto 14
Dommelhoefstraat 44 foto 15
Dommelhoefstraat 44 foto 16
Dommelhoefstraat 44 foto 17
Dommelhoefstraat 44 foto 18
Dommelhoefstraat 44 foto 19
Dommelhoefstraat 44 foto 20
Dommelhoefstraat 44 foto 21
Dommelhoefstraat 44 foto 22
Dommelhoefstraat 44 foto 23
Dommelhoefstraat 44 foto 24
Dommelhoefstraat 44 foto 25
Dommelhoefstraat 44 foto 26
Dommelhoefstraat 44 foto 27
Dommelhoefstraat 44 foto 28
Dommelhoefstraat 44 foto 29
Dommelhoefstraat 44 foto 30
Dommelhoefstraat 44 foto 31
Dommelhoefstraat 44 foto 32
Dommelhoefstraat 44 foto 33
Dommelhoefstraat 44 foto 34
Dommelhoefstraat 44 foto 35
Dommelhoefstraat 44 foto 36
Dommelhoefstraat 44 foto 37
Dommelhoefstraat 44 foto 38
Dommelhoefstraat 44 foto 39
Dommelhoefstraat 44 foto 40
Dommelhoefstraat 44 foto 41
Dommelhoefstraat 44 foto 42
Dommelhoefstraat 44 foto 43
Dommelhoefstraat 44 foto 44
Dommelhoefstraat 44 foto 45
Dommelhoefstraat 44 foto 46
Dommelhoefstraat 44 foto 47
Dommelhoefstraat 44 foto 48
Dommelhoefstraat 44 foto 49
Dommelhoefstraat 44 foto 50
Dommelhoefstraat 44 foto 51
Dommelhoefstraat 44 foto 52
Dommelhoefstraat 44 foto 53
Dommelhoefstraat 44 foto 54
Dommelhoefstraat 44 foto
Dommelhoefstraat 44 foto 2
Dommelhoefstraat 44 foto 3
Dommelhoefstraat 44 foto 4
Dommelhoefstraat 44 foto 5
Dommelhoefstraat 44 foto 6
Dommelhoefstraat 44 foto 7
Dommelhoefstraat 44 foto 8
Dommelhoefstraat 44 foto 9
Dommelhoefstraat 44 foto 10
Dommelhoefstraat 44 foto 11
Dommelhoefstraat 44 foto 12
Dommelhoefstraat 44 foto 13
Dommelhoefstraat 44 foto 14
Dommelhoefstraat 44 foto 15
Dommelhoefstraat 44 foto 16
Dommelhoefstraat 44 foto 17
Dommelhoefstraat 44 foto 18
Dommelhoefstraat 44 foto 19
Dommelhoefstraat 44 foto 20
Dommelhoefstraat 44 foto 21
Dommelhoefstraat 44 foto 22
Dommelhoefstraat 44 foto 23
Dommelhoefstraat 44 foto 24
Dommelhoefstraat 44 foto 25
Dommelhoefstraat 44 foto 26
Dommelhoefstraat 44 foto 27
Dommelhoefstraat 44 foto 28
Dommelhoefstraat 44 foto 29
Dommelhoefstraat 44 foto 30
Dommelhoefstraat 44 foto 31
Dommelhoefstraat 44 foto 32
Dommelhoefstraat 44 foto 33
Dommelhoefstraat 44 foto 34
Dommelhoefstraat 44 foto 35
Dommelhoefstraat 44 foto 36
Dommelhoefstraat 44 foto 37
Dommelhoefstraat 44 foto 38
Dommelhoefstraat 44 foto 39
Dommelhoefstraat 44 foto 40
Dommelhoefstraat 44 foto 41
Dommelhoefstraat 44 foto 42
Dommelhoefstraat 44 foto 43
Dommelhoefstraat 44 foto 44
Dommelhoefstraat 44 foto 45
Dommelhoefstraat 44 foto 46
Dommelhoefstraat 44 foto 47
Dommelhoefstraat 44 foto 48
Dommelhoefstraat 44 foto 49
Dommelhoefstraat 44 foto 50
Dommelhoefstraat 44 foto 51
Dommelhoefstraat 44 foto 52
Dommelhoefstraat 44 foto 53
Dommelhoefstraat 44 foto 54
Dommelhoefstraat 44 plattegrond
Dommelhoefstraat 44 plattegrond 2
Dommelhoefstraat 44 plattegrond 3
Dommelhoefstraat 44 plattegrond 4
Dommelhoefstraat 44 plattegrond 5
Dommelhoefstraat 44 plattegrond
Dommelhoefstraat 44 plattegrond 2
Dommelhoefstraat 44 plattegrond 3
Dommelhoefstraat 44 plattegrond 4
Dommelhoefstraat 44 plattegrond 5
Dommelhoefstraat 44 hoofdfoto
Temp

Informatie downloaden van Dommelhoefstraat 44

Kenmerken

Overdracht

Status Beschikbaar
Vraagprijs € 795.000 k.k.
Aanvaarding In overleg

Bouwvorm

Soort Woning Eengezinswoning
Type Woning Hoekwoning
Bouwjaar 1950
Bouwvorm Bestaande bouw
Woonoppervlakte 146 m²
Perceeloppervlakte 238 m²
Aantal Kamers 6
Aantal Slaapkamers 4
Aantal Woonlagen 3
Inhoud 436 m³
Cv Ketel Merk Intergas
Cv Ketel Bouwjaar 2016

Parkeergelegenheid

Parkeerfaciliteiten Parkeervergunningen

Overig

Onderhoud Binnen Goed
Onderhoud Buiten Goed
Huidige Bestemming Woonruimte

Kadaster

Gemeente Tongelre
Sectie F
Perceel 1515
Oppervlakte 238 m²
Eigendomssituatie Volle eigendom

Locatie

Benieuwd naar jouw mogelijkheden?

We zijn benieuwd naar je verhaal!

Heb je een vraag of wil je een afspraak met ons maken? Je kunt ons bellen of stuur een Whatsapp-bericht. Je hoort snel van ons!