Klein Duimpje 7
5629 LD, Eindhoven
€ 595.000
k.k.
Verkocht onder voorbehoud
Omschrijving
- Bouwjaar 1995
- Woonoppervlakte 128 m²
- Aantal kamers 5
- Aantal slaapkamers 4
In de geliefde en kindvriendelijke wijk Blixembosch (Sprookjesbosch) ligt deze royale geschakelde woning met garage en eigen oprit. De woning is verrassend ruim, uitstekend onderhouden en voorzien van onder andere vier volwaardige slaapkamers, een balkon, moderne keuken, fraaie living met airconditioning en maar liefst 14 zonnepanelen. Dankzij de fijne indeling, het prettige lichtinval en de rustige ligging is dit een ideale gezinswoning op een zeer gewilde locatie in Eindhoven.
Begane grond
Via de royale voortuin bereik je de entree van de woning. In de hal bevinden zich de meterkast, het toilet en de trapopgang naar de verdiepingen. Vanuit hier stap je de royale woonkamer binnen.
De woonkamer is heerlijk licht en ruim van opzet, met grote raampartijen aan meerdere zijden én een fraaie pvc vloer in visgraat motief. Er is volop ruimte voor een comfortabele zithoek én een grote eettafel. De indeling maakt de ruimte bijzonder praktisch en sfeervol.
Aan de voorzijde bevindt zich de fraaie keuken, uitgevoerd in een moderne stijl met strakke fronten. De keuken beschikt over diverse inbouwapparatuur zoals een inductie Bora kookplaat met afzuigkoker, Quooker, vaatwasser, combi-magnetron, (stoom)oven, koelkast, vrieslades en biedt voldoende kastruimte. Dankzij het raam is ook hier sprake van fijn daglicht. Vanuit de woonkamer is er directe toegang tot de fraaie achtertuin.
Eerste verdieping
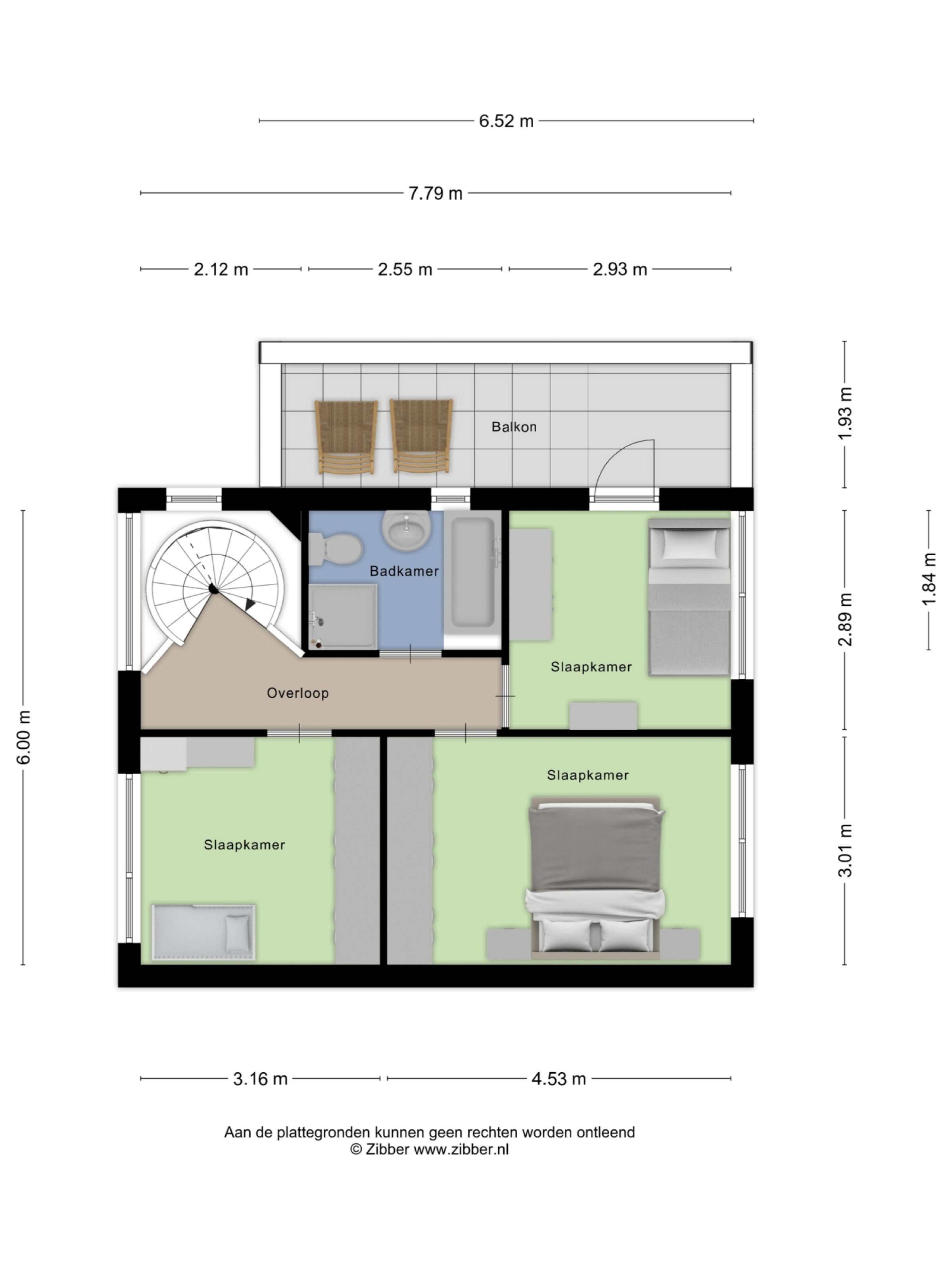
De eerste verdieping biedt plaats aan drie goed bemeten slaapkamers, waarvan 1 met toegang tot balkon. De kamers zijn functioneel ingedeeld en geschikt als slaap-, werk- of hobbykamer.
De badkamer is centraal gelegen en compleet uitgevoerd met ligbad, douche, wastafel en toilet.
Tweede verdieping
De tweede verdieping verrast door de ruimte en veelzijdigheid. Hier bevindt zich de vierde slaapkamer, ideaal als master bedroom, thuiskantoor of tienerkamer. Dankzij de dakconstructie en het daglicht is dit een prettige, volwaardige leefruimte.
Daarnaast is er veel praktische bergruimte aanwezig, keurig weggewerkt achter vaste kasten en knieschotten. Ook de technische installaties zijn hier netjes opgesteld.
Garage en buitenruimte
De woning beschikt over een vrijstaande garage, gelegen achter de woning. ideaal voor het stallen van een auto, fietsen of het creëren van extra opslagruimte. Parkeren kan daarnaast op de eigen oprit.
De achtertuin is gelegen op het zuidoosten en is onderhoudsvriendelijk aangelegd. De tuin is volledig omheind en biedt voldoende ruimte voor meerdere zitplekken, waardoor je op verschillende momenten van de dag van zon of schaduw kunt genieten. Het terras is voorzien van een elektrisch zonneluifel.
Ligging & omgeving
Klein Duimpje 7 is gelegen in de populaire wijk Blixembosch – Sprookjesbosch, bekend om zijn groene karakter, speelse opzet en kindvriendelijke woonomgeving. In de directe nabijheid vind je scholen, kinderopvang, speelvoorzieningen en winkelcentra. Ook natuurgebied en uitvalswegen richting het centrum van Eindhoven, ASML en de High Tech Campus zijn snel en eenvoudig bereikbaar. Een rustige woonlocatie met alle dagelijkse voorzieningen binnen handbereik.
AlGEMEEN
- Royale geschakelde woning;
- Garage én eigen oprit;
- Vier volwaardige slaapkamers;
- Balkon op de eerste verdieping;
- Moderne keuken;
- De woonkamer is voorzien van airconditioning;
- 14 zonnepanelen;
- Veel lichtinval en prettige indeling;
- Gelegen op een royaal (hoek)perceel van 279 m²;
- In de geliefde wijk Blixembosch (Sprookjesbosch);
- Kindvriendelijke en rustige woonomgeving nabij winkels, scholen, natuur en en uitvalswegen.
Begane grond
Via de royale voortuin bereik je de entree van de woning. In de hal bevinden zich de meterkast, het toilet en de trapopgang naar de verdiepingen. Vanuit hier stap je de royale woonkamer binnen.
De woonkamer is heerlijk licht en ruim van opzet, met grote raampartijen aan meerdere zijden én een fraaie pvc vloer in visgraat motief. Er is volop ruimte voor een comfortabele zithoek én een grote eettafel. De indeling maakt de ruimte bijzonder praktisch en sfeervol.
Aan de voorzijde bevindt zich de fraaie keuken, uitgevoerd in een moderne stijl met strakke fronten. De keuken beschikt over diverse inbouwapparatuur zoals een inductie Bora kookplaat met afzuigkoker, Quooker, vaatwasser, combi-magnetron, (stoom)oven, koelkast, vrieslades en biedt voldoende kastruimte. Dankzij het raam is ook hier sprake van fijn daglicht. Vanuit de woonkamer is er directe toegang tot de fraaie achtertuin.
Eerste verdieping
De eerste verdieping biedt plaats aan drie goed bemeten slaapkamers, waarvan 1 met toegang tot balkon. De kamers zijn functioneel ingedeeld en geschikt als slaap-, werk- of hobbykamer.
De badkamer is centraal gelegen en compleet uitgevoerd met ligbad, douche, wastafel en toilet.
Tweede verdieping
De tweede verdieping verrast door de ruimte en veelzijdigheid. Hier bevindt zich de vierde slaapkamer, ideaal als master bedroom, thuiskantoor of tienerkamer. Dankzij de dakconstructie en het daglicht is dit een prettige, volwaardige leefruimte.
Daarnaast is er veel praktische bergruimte aanwezig, keurig weggewerkt achter vaste kasten en knieschotten. Ook de technische installaties zijn hier netjes opgesteld.
Garage en buitenruimte
De woning beschikt over een vrijstaande garage, gelegen achter de woning. ideaal voor het stallen van een auto, fietsen of het creëren van extra opslagruimte. Parkeren kan daarnaast op de eigen oprit.
De achtertuin is gelegen op het zuidoosten en is onderhoudsvriendelijk aangelegd. De tuin is volledig omheind en biedt voldoende ruimte voor meerdere zitplekken, waardoor je op verschillende momenten van de dag van zon of schaduw kunt genieten. Het terras is voorzien van een elektrisch zonneluifel.
Ligging & omgeving
Klein Duimpje 7 is gelegen in de populaire wijk Blixembosch – Sprookjesbosch, bekend om zijn groene karakter, speelse opzet en kindvriendelijke woonomgeving. In de directe nabijheid vind je scholen, kinderopvang, speelvoorzieningen en winkelcentra. Ook natuurgebied en uitvalswegen richting het centrum van Eindhoven, ASML en de High Tech Campus zijn snel en eenvoudig bereikbaar. Een rustige woonlocatie met alle dagelijkse voorzieningen binnen handbereik.
AlGEMEEN
- Royale geschakelde woning;
- Garage én eigen oprit;
- Vier volwaardige slaapkamers;
- Balkon op de eerste verdieping;
- Moderne keuken;
- De woonkamer is voorzien van airconditioning;
- 14 zonnepanelen;
- Veel lichtinval en prettige indeling;
- Gelegen op een royaal (hoek)perceel van 279 m²;
- In de geliefde wijk Blixembosch (Sprookjesbosch);
- Kindvriendelijke en rustige woonomgeving nabij winkels, scholen, natuur en en uitvalswegen.
Advies over de juiste hypotheek?
Bel Robert: 040-2927575
Informatie downloaden van Klein Duimpje 7
Informatie downloaden van Klein Duimpje 7
Kenmerken
Overdracht
| Status | Verkocht onder voorbehoud |
| Vraagprijs | € 595.000 k.k. |
| Aanvaarding | In overleg |
Bouwvorm
| Soort Woning | Eengezinswoning |
| Type Woning | Geschakelde woning |
| Bouwjaar | 1995 |
| Bouwvorm | Bestaande bouw |
| Woonoppervlakte | 128 m² |
| Garage Capaciteit | 1 |
| Perceeloppervlakte | 279 m² |
| Externe Bergruimte | 17 m² |
| Aantal Kamers | 5 |
| Aantal Slaapkamers | 4 |
| Aantal Woonlagen | 3 |
| Inhoud | 452 m³ |
| Cv Ketel Merk | Remeha |
| Cv Ketel Bouwjaar | 2011 |
Parkeergelegenheid
| Parkeerfaciliteiten | Openbaar parkeren, op eigen terrein |
Overig
| Onderhoud Binnen | Goed |
| Onderhoud Buiten | Goed |
| Huidige Bestemming | Woonruimte |
Kadaster
| Gemeente | Woensel |
| Sectie | W |
| Perceel | 4605 |
| Oppervlakte | 279 m² |
| Eigendomssituatie | Volle eigendom |