Canopuslaan 32
5632 BL, Eindhoven
€ 649.000
k.k.
Dit object is
Verkocht
Omschrijving
- Bouwjaar 1977
- Woonoppervlakte 180 m²
- Aantal kamers 6
- Aantal slaapkamers 5
Ruime 2-onder-1-kapwoning met garage, vijf slaapkamers en diepe parkachtige tuin op een fraaie, groene locatie
In een rustige en groene woonomgeving in Eindhoven-Noord ligt deze royale 2-onder-1-kapwoning, direct nabij de prachtige vijvers en natuur. Hier woont u met alle voorzieningen binnen handbereik, maar toch in een bijzonder natuurrijke setting. De woning beschikt over een grote inpandige garage, een sfeervolle L-vormige living, vijf volwaardige slaapkamers en een schitterend diepe achtertuin met optimale privacy. Een ideale gezinswoning op een toplocatie!
Begane grond
Via de overdekte entree betreedt u de ruime hal met garderobe en modern toilet. De L-vormige living is een heerlijke, lichte leefruimte dankzij de grote raampartijen en de schuifpui naar de tuin. De open haard vormt een sfeervol middelpunt en maakt de woonkamer tot een fijne plek om te ontspannen of gasten te ontvangen.
Aan de achterzijde bevindt zich de eetkamer, met direct zicht op de tuin. De living en eetkamer vormen samen één grote, prettige leefruimte.
De aparte keuken biedt veel werk- en kastruimte en is uitgerust met een nieuwe inductiekookplaat (2025), nieuwe koelkast (2025), afzuigkap, combi oven/magnetron, vaatwasser en close-in boiler. Het raam boven het aanrecht geeft prettig licht en zicht op de tuin. Aangrenzend ligt de praktische bijkeuken met aansluiting voor wasapparatuur en een grote kastenwand.
De ruime inpandige garage beschikt over een elektrische sectionaaldeur, verwarming (radiator), wateraansluiting en veel bergruimte.
Eerste verdieping
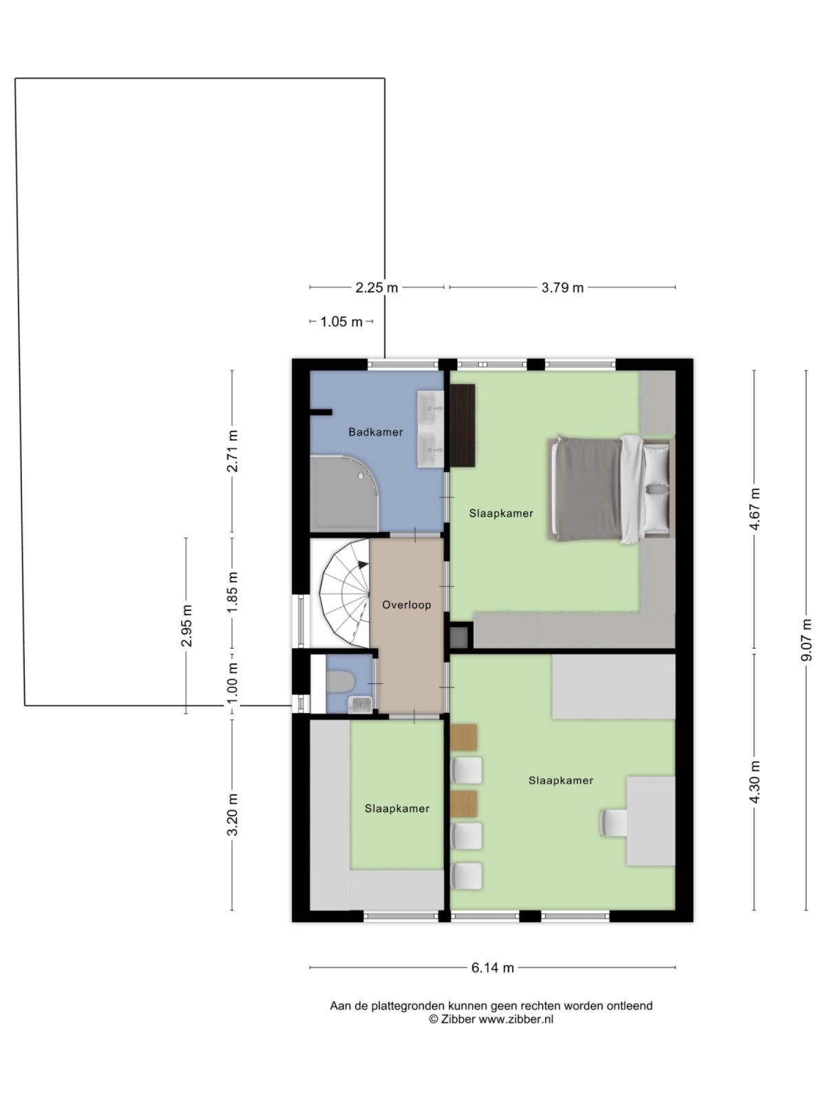
De eerste etage biedt drie ruime slaapkamers, ideaal als slaap-, werk- of hobbyruimte. Dankzij de grote ramen is de lichtinval optimaal.
De badkamer is voorzien van een dubbele wastafel in modern meubel, een ruime inloopdouche met zitje en extra opbergruimte. Het toilet is separaat op de overloop geplaatst.
Tweede verdieping
De tweede verdieping is volledig in gebruik als woonruimte en beschikt over nog twee slaapkamers.
De grootste kamer heeft een dakkapel, vaste inbouwkast, vaste wastafel én dakvenster – een ideale werk-, studeer- of slaapkamer. De extra slaapkamer met dakvenster aan de voorzijde biedt eveneens bergruimte achter de knieschotten.
Op deze verdieping bevindt zich ook de technische ruimte met de cv-installatie en extra opbergruimte.
Tuin
De achtertuin is een waar pareltje: extra diep, prachtig aangelegd en zeer privacyrijk. Met een groot gazon, volwassen beplanting, borders, terrassen en meerdere zitplekken is het hier heerlijk vertoeven. De zonneluifel boven het terras zorgt op warme dagen voor schaduw. Verder beschikt de tuin over een buitenkraan en een houthok.
Algemeen:
- Royale 2-onder-1-kapwoning op rustige, groene locatie;
- Grote inpandige garage met elektrische sectionaaldeur, radiator en water;
- Sfeervolle L-vormige living met open haard en schuifpui;
- Ruime, aparte leefkeuken;
- Bijkeuken met wasmachineaansluiting en kastenwand;
- Vijf volwaardige slaapkamers;
- Badkamer met dubbele wastafel en inloopdouche met zitje;
- Separaat toilet op de eerste verdieping;
- Extra diepe, parkachtige tuin met veel privacy;
- Zonneluifel, terras, borders, houthok, waterkraan en putje;
- Eigen oprit met parkeergelegenheid;
- Gelegen op een fijne en rustige woonlocatie nabij diverse voorzieningen en nabij park met waterpartijen.
In een rustige en groene woonomgeving in Eindhoven-Noord ligt deze royale 2-onder-1-kapwoning, direct nabij de prachtige vijvers en natuur. Hier woont u met alle voorzieningen binnen handbereik, maar toch in een bijzonder natuurrijke setting. De woning beschikt over een grote inpandige garage, een sfeervolle L-vormige living, vijf volwaardige slaapkamers en een schitterend diepe achtertuin met optimale privacy. Een ideale gezinswoning op een toplocatie!
Begane grond
Via de overdekte entree betreedt u de ruime hal met garderobe en modern toilet. De L-vormige living is een heerlijke, lichte leefruimte dankzij de grote raampartijen en de schuifpui naar de tuin. De open haard vormt een sfeervol middelpunt en maakt de woonkamer tot een fijne plek om te ontspannen of gasten te ontvangen.
Aan de achterzijde bevindt zich de eetkamer, met direct zicht op de tuin. De living en eetkamer vormen samen één grote, prettige leefruimte.
De aparte keuken biedt veel werk- en kastruimte en is uitgerust met een nieuwe inductiekookplaat (2025), nieuwe koelkast (2025), afzuigkap, combi oven/magnetron, vaatwasser en close-in boiler. Het raam boven het aanrecht geeft prettig licht en zicht op de tuin. Aangrenzend ligt de praktische bijkeuken met aansluiting voor wasapparatuur en een grote kastenwand.
De ruime inpandige garage beschikt over een elektrische sectionaaldeur, verwarming (radiator), wateraansluiting en veel bergruimte.
Eerste verdieping
De eerste etage biedt drie ruime slaapkamers, ideaal als slaap-, werk- of hobbyruimte. Dankzij de grote ramen is de lichtinval optimaal.
De badkamer is voorzien van een dubbele wastafel in modern meubel, een ruime inloopdouche met zitje en extra opbergruimte. Het toilet is separaat op de overloop geplaatst.
Tweede verdieping
De tweede verdieping is volledig in gebruik als woonruimte en beschikt over nog twee slaapkamers.
De grootste kamer heeft een dakkapel, vaste inbouwkast, vaste wastafel én dakvenster – een ideale werk-, studeer- of slaapkamer. De extra slaapkamer met dakvenster aan de voorzijde biedt eveneens bergruimte achter de knieschotten.
Op deze verdieping bevindt zich ook de technische ruimte met de cv-installatie en extra opbergruimte.
Tuin
De achtertuin is een waar pareltje: extra diep, prachtig aangelegd en zeer privacyrijk. Met een groot gazon, volwassen beplanting, borders, terrassen en meerdere zitplekken is het hier heerlijk vertoeven. De zonneluifel boven het terras zorgt op warme dagen voor schaduw. Verder beschikt de tuin over een buitenkraan en een houthok.
Algemeen:
- Royale 2-onder-1-kapwoning op rustige, groene locatie;
- Grote inpandige garage met elektrische sectionaaldeur, radiator en water;
- Sfeervolle L-vormige living met open haard en schuifpui;
- Ruime, aparte leefkeuken;
- Bijkeuken met wasmachineaansluiting en kastenwand;
- Vijf volwaardige slaapkamers;
- Badkamer met dubbele wastafel en inloopdouche met zitje;
- Separaat toilet op de eerste verdieping;
- Extra diepe, parkachtige tuin met veel privacy;
- Zonneluifel, terras, borders, houthok, waterkraan en putje;
- Eigen oprit met parkeergelegenheid;
- Gelegen op een fijne en rustige woonlocatie nabij diverse voorzieningen en nabij park met waterpartijen.
Advies over de juiste hypotheek?
Bel Robert: 040-2927575
Informatie downloaden van Canopuslaan 32
Informatie downloaden van Canopuslaan 32
Kenmerken
Overdracht
| Status | Verkocht |
| Vraagprijs | € 649.000 k.k. |
| Aanvaarding | In overleg |
Bouwvorm
| Soort Woning | Eengezinswoning |
| Type Woning | Twee onder een kapwoning |
| Bouwjaar | 1977 |
| Bouwvorm | Bestaande bouw |
| Woonoppervlakte | 180 m² |
| Garage Capaciteit | 1 |
| Perceeloppervlakte | 396 m² |
| Overige Inpandige Ruimte | 20 m² |
| Aantal Kamers | 6 |
| Aantal Slaapkamers | 5 |
| Aantal Woonlagen | 3 |
| Inhoud | 706 m³ |
| Cv Ketel Merk | Intergas |
Parkeergelegenheid
| Parkeerfaciliteiten | Openbaar parkeren, op eigen terrein |
Overig
| Onderhoud Binnen | Goed |
| Onderhoud Buiten | Goed |
| Huidige Bestemming | Woonruimte |
Kadaster
| Gemeente | Woensel |
| Sectie | N |
| Perceel | 1346 |
| Oppervlakte | 396 m² |
| Eigendomssituatie | Volle eigendom |