Baristraat 4
5632 TK, Eindhoven
€ 439.000
k.k.
Verkocht onder voorbehoud
Omschrijving
- Bouwjaar 1973
- Woonoppervlakte 141 m²
- Aantal kamers 5
- Aantal slaapkamers 4
Aan een rustige straat in de gewilde woonwijk Heesterakker ligt deze uitgebouwde eengezinswoning met verrassend veel ruimte. De woning beschikt over een aanbouw over de volledige breedte aan de achterzijde, een ruime moderne keuken, vier slaapkamers, een dakkapel, een complete badkamer én een garage op het achtergelegen pleintje. Een fijne gezinswoning op een prettige locatie.
Begane grond
Via de entree bereik je de hal met meterkast, toiletruimte en trapopgang.
De woonkamer is door de aanbouw over de volledige breedte opvallend royaal (circa 11,5 meter diep). Aan de achterzijde zorgen de grote raampartijen en de extra deur naar de tuin voor veel lichtinval en een prettige verbinding met buiten. Er is meer dan voldoende ruimte voor een ruime zithoek én een volwaardige eethoek.
Aan de voorzijde bevindt zich de ruime, hoekopgestelde moderne keukeninrichting. Deze is praktisch opgezet met veel werk- en bergruimte en staat in open verbinding met de leefruimte.
De achtertuin is onderhoudsvriendelijk aangelegd en biedt volop ruimte om meerdere terrassen te creëren. Achter in de tuin bevindt zich de directe toegang tot de eigen garage (ca. 2,80 x 6,16 m), voorzien van een kanteldeur en loopdeur.
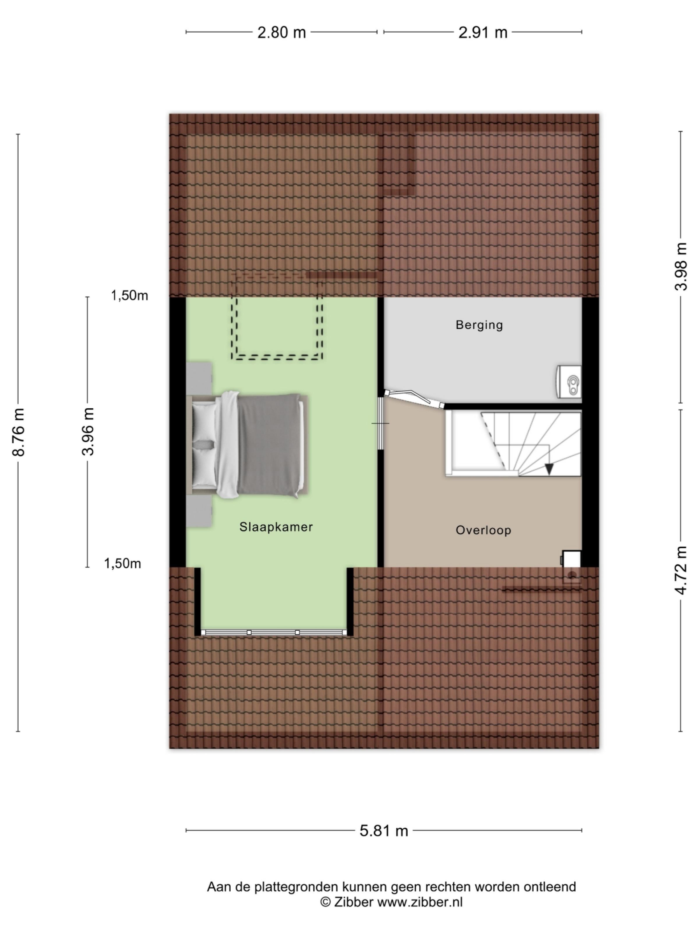
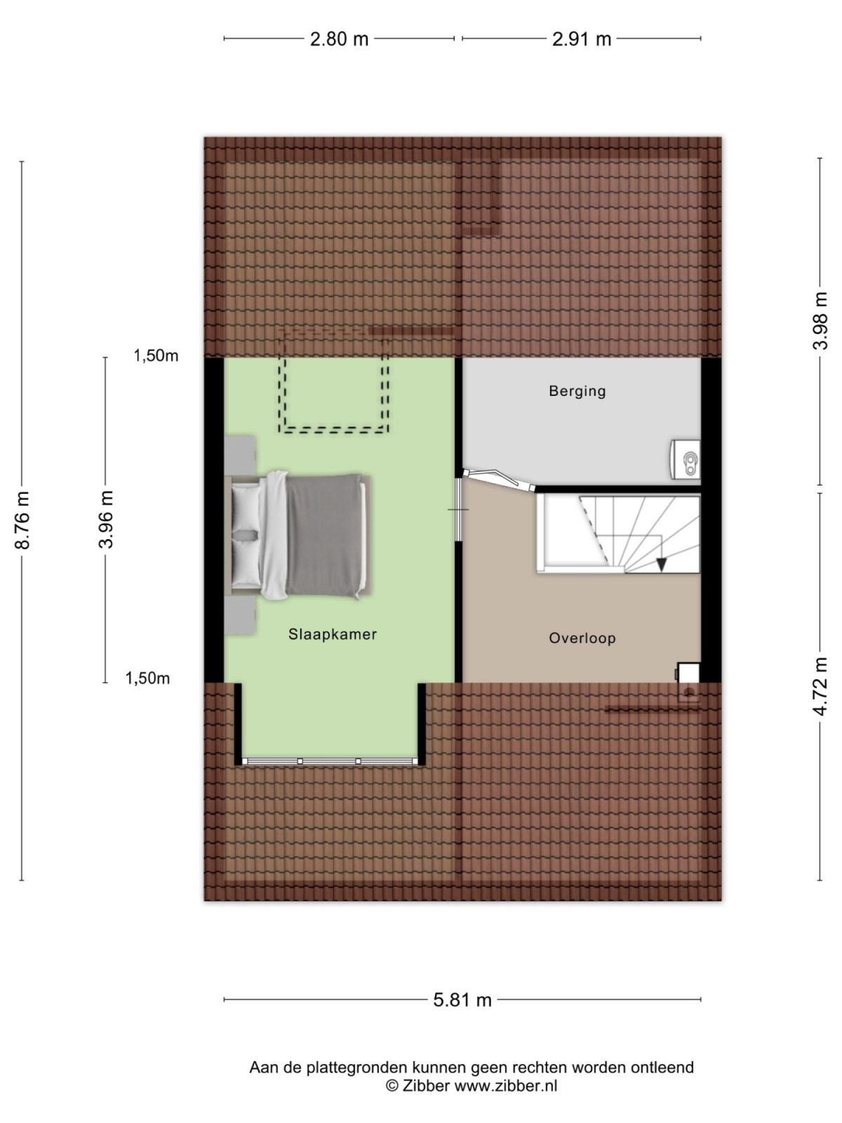
Eerste verdieping
De overloop geeft toegang tot drie slaapkamers en de badkamer.
De slaapkamers zijn goed van formaat en praktisch in te delen. De grootste kamer bevindt zich aan de achterzijde. Dankzij de rechte gevels is de ruimte efficiënt te benutten.
De badkamer is compleet uitgevoerd met een grote inloopdouche, wastafel in meubel met kastjes + spiegel+ verlichting en een tweede toilet.
Tweede verdieping
Via een vaste trap bereik je de tweede verdieping.
Hier bevindt zich de vierde slaapkamer, voorzien van een dakkapel die zorgt voor extra ruimte en licht. Daarnaast is er een separate bergruimte/technische ruimte aanwezig, ideaal voor opslag en witgoedaansluitingen.
Garage
Achterin de tuin is de vrijstaande garage gelegen en heeft een afmeting van circa 2,80 x 6,16 meter. Ideaal voor het stallen van een auto, motor of fietsen, maar ook zeer geschikt als extra opslagruimte. De garage komt uit op het achter gelegen garagepleintje.
Ligging
De woning is gelegen in de populaire en kindvriendelijke woonwijk Heesterakker in Eindhoven Noord. De Baristraat is een rustige straat met voornamelijk bestemmingsverkeer.
In de directe omgeving bevinden zich diverse speelvoorzieningen, basisscholen en sportverenigingen (voetbal, korfbal en tennis/padel). Op korte afstand ligt het stroomgebied van de Dommel, waar het heerlijk wandelen en recreëren is. Tevens is er een uitstekende aansluiting op het Eindhovense autowegennet en zijn winkelvoorzieningen en openbaar vervoer goed bereikbaar.
Een ideale combinatie van rustig wonen met alle voorzieningen binnen handbereik.
ALGEMEEN:
- Uitgebouwde woonkamer over volledige breedte;
- Woonkamer van ca. 11,5 meter diep;
- Hoekopgestelde moderne keuken;
- Vier slaapkamers;
- Dakkapel op tweede verdieping;
- Badkamer met grote inloopdouche en tweede toilet;
- Ruime achtertuin met directe toegang tot de garage (ca. 2,80 x 6,16 m);
- Gelegen in rustige, kindvriendelijke wijk Heesterakker;
- Nabij natuurgebied De Dommel;
- Goede aansluiting op uitvalswegen.
Begane grond
Via de entree bereik je de hal met meterkast, toiletruimte en trapopgang.
De woonkamer is door de aanbouw over de volledige breedte opvallend royaal (circa 11,5 meter diep). Aan de achterzijde zorgen de grote raampartijen en de extra deur naar de tuin voor veel lichtinval en een prettige verbinding met buiten. Er is meer dan voldoende ruimte voor een ruime zithoek én een volwaardige eethoek.
Aan de voorzijde bevindt zich de ruime, hoekopgestelde moderne keukeninrichting. Deze is praktisch opgezet met veel werk- en bergruimte en staat in open verbinding met de leefruimte.
De achtertuin is onderhoudsvriendelijk aangelegd en biedt volop ruimte om meerdere terrassen te creëren. Achter in de tuin bevindt zich de directe toegang tot de eigen garage (ca. 2,80 x 6,16 m), voorzien van een kanteldeur en loopdeur.
Eerste verdieping
De overloop geeft toegang tot drie slaapkamers en de badkamer.
De slaapkamers zijn goed van formaat en praktisch in te delen. De grootste kamer bevindt zich aan de achterzijde. Dankzij de rechte gevels is de ruimte efficiënt te benutten.
De badkamer is compleet uitgevoerd met een grote inloopdouche, wastafel in meubel met kastjes + spiegel+ verlichting en een tweede toilet.
Tweede verdieping
Via een vaste trap bereik je de tweede verdieping.
Hier bevindt zich de vierde slaapkamer, voorzien van een dakkapel die zorgt voor extra ruimte en licht. Daarnaast is er een separate bergruimte/technische ruimte aanwezig, ideaal voor opslag en witgoedaansluitingen.
Garage
Achterin de tuin is de vrijstaande garage gelegen en heeft een afmeting van circa 2,80 x 6,16 meter. Ideaal voor het stallen van een auto, motor of fietsen, maar ook zeer geschikt als extra opslagruimte. De garage komt uit op het achter gelegen garagepleintje.
Ligging
De woning is gelegen in de populaire en kindvriendelijke woonwijk Heesterakker in Eindhoven Noord. De Baristraat is een rustige straat met voornamelijk bestemmingsverkeer.
In de directe omgeving bevinden zich diverse speelvoorzieningen, basisscholen en sportverenigingen (voetbal, korfbal en tennis/padel). Op korte afstand ligt het stroomgebied van de Dommel, waar het heerlijk wandelen en recreëren is. Tevens is er een uitstekende aansluiting op het Eindhovense autowegennet en zijn winkelvoorzieningen en openbaar vervoer goed bereikbaar.
Een ideale combinatie van rustig wonen met alle voorzieningen binnen handbereik.
ALGEMEEN:
- Uitgebouwde woonkamer over volledige breedte;
- Woonkamer van ca. 11,5 meter diep;
- Hoekopgestelde moderne keuken;
- Vier slaapkamers;
- Dakkapel op tweede verdieping;
- Badkamer met grote inloopdouche en tweede toilet;
- Ruime achtertuin met directe toegang tot de garage (ca. 2,80 x 6,16 m);
- Gelegen in rustige, kindvriendelijke wijk Heesterakker;
- Nabij natuurgebied De Dommel;
- Goede aansluiting op uitvalswegen.
Advies over de juiste hypotheek?
Bel Robert: 040-2927575
Informatie downloaden van Baristraat 4
Informatie downloaden van Baristraat 4
Kenmerken
Overdracht
| Status | Verkocht onder voorbehoud |
| Vraagprijs | € 439.000 k.k. |
| Aanvaarding | In overleg |
Bouwvorm
| Soort Woning | Eengezinswoning |
| Type Woning | Tussenwoning |
| Bouwjaar | 1973 |
| Bouwvorm | Bestaande bouw |
| Woonoppervlakte | 141 m² |
| Perceeloppervlakte | 150 m² |
| Externe Bergruimte | 17 m² |
| Aantal Kamers | 5 |
| Aantal Slaapkamers | 4 |
| Aantal Woonlagen | 3 |
| Inhoud | 503 m³ |
Parkeergelegenheid
| Parkeerfaciliteiten | Openbaar parkeren |
Overig
| Onderhoud Binnen | Goed |
| Onderhoud Buiten | Goed |
| Huidige Bestemming | Woonruimte |
Kadaster
| Gemeente | Woensel |
| Sectie | C |
| Perceel | 2379 |
| Oppervlakte | 150 m² |
| Eigendomssituatie | Volle eigendom |