Van Uffelen makelaars Eindhoven

Leeghwaterstraat 246

5612 JL, Eindhoven
€ 350.000 k.k.
Leeghwaterstraat 246 hoofdfoto

Omschrijving

  • Bouwjaar 2002
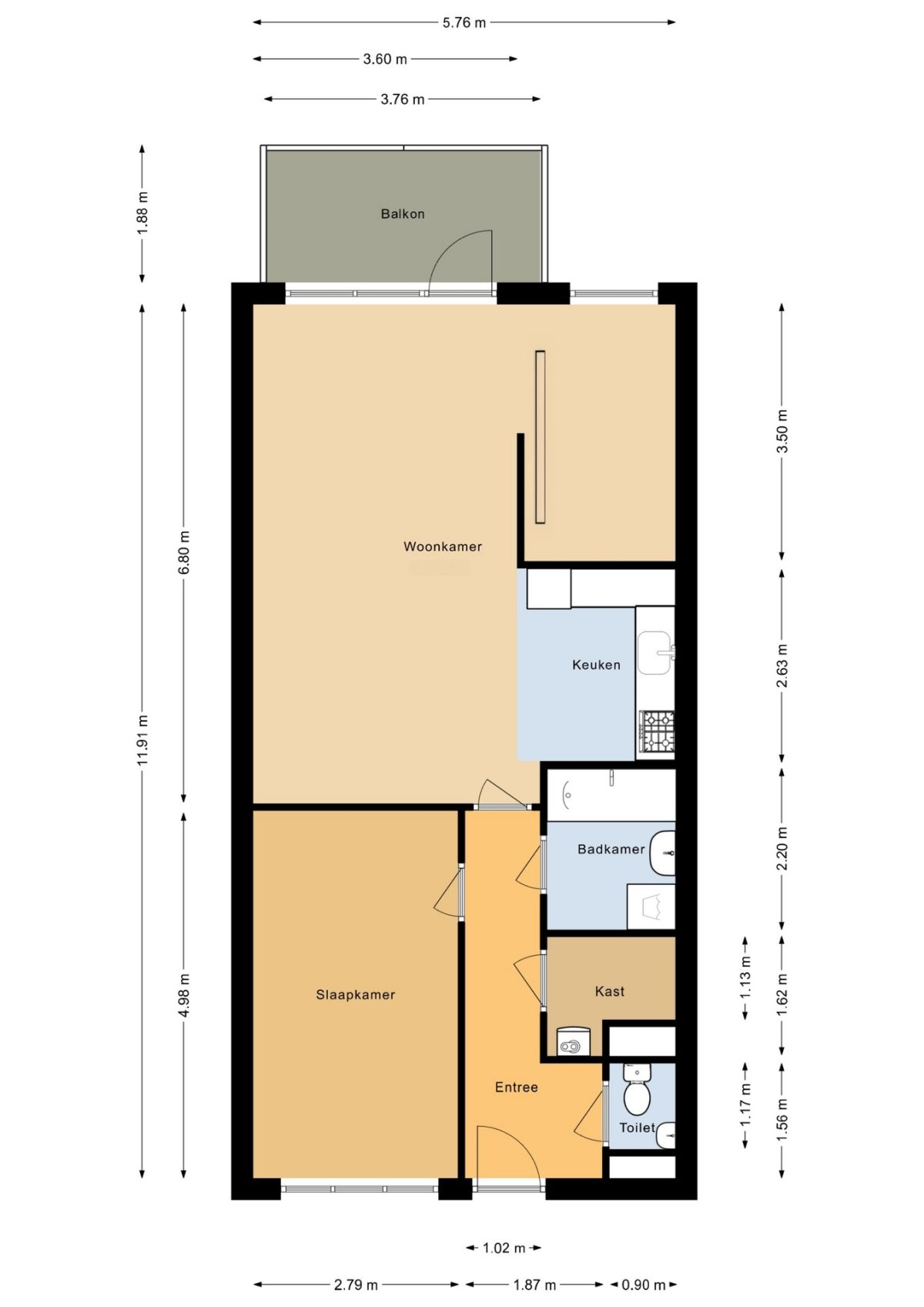
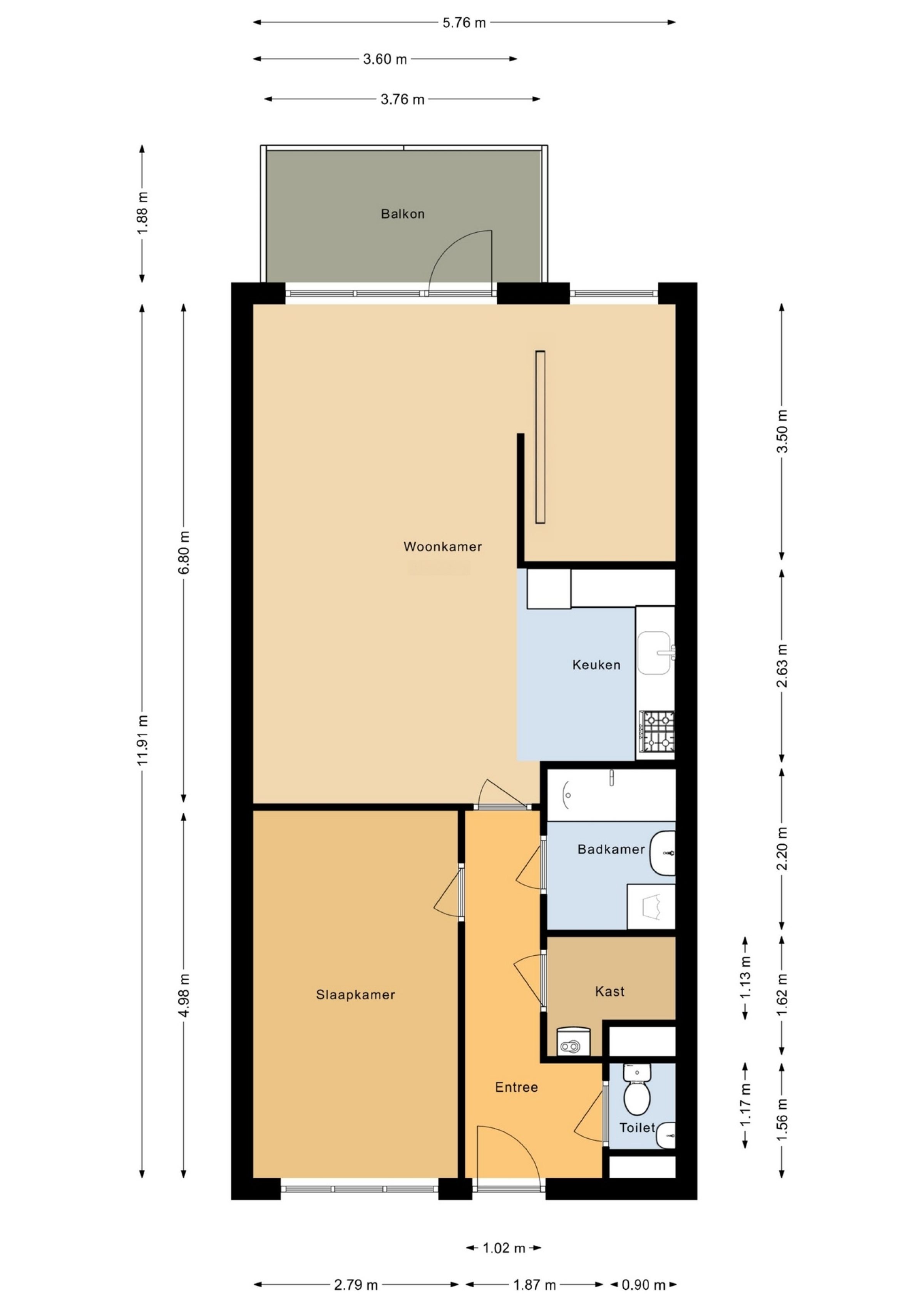
  • Woonoppervlakte 69 m²
  • Aantal kamers 2
  • Aantal slaapkamers 1
Op een prettige en centrale locatie in Eindhoven ligt dit modern afgewerkte en instapklare 2-kamerappartement met balkon en vrij uitzicht. Het appartement maakt onderdeel uit van een verzorgd appartementencomplex en biedt een fijne combinatie van comfort, licht en een praktische indeling. Bij aankomst valt direct het nette complex op, met een verzorgde entree en galerijen. Via de galerij bereikt u de woning, waarbij de rustige ligging en het open karakter van de omgeving direct opvallen.

Woonkamer en keuken
De woonkamer vormt het centrale punt van het appartement en is opvallend licht dankzij de grote raampartijen en de directe verbinding met het balkon. De ruimte is prettig in te delen met zowel een comfortabele zithoek als een eethoek. De nette afwerking en warme vloer zorgen voor een moderne en uitnodigende uitstraling. Aangrenzend bevindt zich een extra ruimte die middels een schuifdeur is afgescheiden, ideaal als werkplek, hobbyruimte of logeerkamer. De open keuken sluit naadloos aan op de woonkamer en is uitgevoerd in een praktische hoekopstelling.

Slaapkamer en badkamer
De slaapkamer is ruim en rustig gelegen en biedt voldoende plek voor een tweepersoonsbed en een royale kledingkast.
De prettige lichtinval maakt dit een comfortabele en aangename ruimte.

Toilet
Het appartement beschikt over een separate toiletruimte, bereikbaar vanuit de hal, wat het wooncomfort vergroot.

Balkon
Vanuit de woonkamer bereikt u het balkon, waar u heerlijk kunt genieten van het vrije uitzicht over groen en de omgeving. Dankzij de ligging is dit een fijne plek om te ontspannen en buiten te zitten.

Berging
Op de begane grond bevindt zich een externe berging, ideaal voor het stallen van fietsen of extra opslagruimte.

- Instapklaar appartement
- Lichte woonkamer met grote raampartijen
- Balkon met vrij uitzicht over groen
- Extra (werk)kamer middels schuifdeur
- Open keuken met complete inbouwapparatuur
- Ruime slaapkamer
- Complete badkamer met ligbad en wasmachineaansluiting
- Apart toilet
- Externe berging op de begane grond
- Rustige ligging nabij het centrum van Eindhoven
- Alle voorzieningen en openbaar vervoer op korte afstand
Advies over de juiste hypotheek? Bel Robert: 040-2927575
Van Uffelen Robert
Leeghwaterstraat 246 foto
Leeghwaterstraat 246 foto 2
Leeghwaterstraat 246 foto 3
Leeghwaterstraat 246 foto 4
Leeghwaterstraat 246 foto 5
Leeghwaterstraat 246 foto 6
Leeghwaterstraat 246 foto 7
Leeghwaterstraat 246 foto 8
Leeghwaterstraat 246 foto 9
Leeghwaterstraat 246 foto 10
Leeghwaterstraat 246 foto 11
Leeghwaterstraat 246 foto 12
Leeghwaterstraat 246 foto 13
Leeghwaterstraat 246 foto 14
Leeghwaterstraat 246 foto 15
Leeghwaterstraat 246 foto 16
Leeghwaterstraat 246 foto 17
Leeghwaterstraat 246 foto 18
Leeghwaterstraat 246 foto 19
Leeghwaterstraat 246 foto 20
Leeghwaterstraat 246 foto 21
Leeghwaterstraat 246 foto 22
Leeghwaterstraat 246 foto 23
Leeghwaterstraat 246 foto 24
Leeghwaterstraat 246 foto 25
Leeghwaterstraat 246 foto 26
Leeghwaterstraat 246 foto 27
Leeghwaterstraat 246 foto
Leeghwaterstraat 246 foto 2
Leeghwaterstraat 246 foto 3
Leeghwaterstraat 246 foto 4
Leeghwaterstraat 246 foto 5
Leeghwaterstraat 246 foto 6
Leeghwaterstraat 246 foto 7
Leeghwaterstraat 246 foto 8
Leeghwaterstraat 246 foto 9
Leeghwaterstraat 246 foto 10
Leeghwaterstraat 246 foto 11
Leeghwaterstraat 246 foto 12
Leeghwaterstraat 246 foto 13
Leeghwaterstraat 246 foto 14
Leeghwaterstraat 246 foto 15
Leeghwaterstraat 246 foto 16
Leeghwaterstraat 246 foto 17
Leeghwaterstraat 246 foto 18
Leeghwaterstraat 246 foto 19
Leeghwaterstraat 246 foto 20
Leeghwaterstraat 246 foto 21
Leeghwaterstraat 246 foto 22
Leeghwaterstraat 246 foto 23
Leeghwaterstraat 246 foto 24
Leeghwaterstraat 246 foto 25
Leeghwaterstraat 246 foto 26
Leeghwaterstraat 246 foto 27
Leeghwaterstraat 246 plattegrond
Leeghwaterstraat 246 plattegrond 2
Leeghwaterstraat 246 plattegrond
Leeghwaterstraat 246 plattegrond 2
Temp

Informatie downloaden van Leeghwaterstraat 246

Kenmerken

Overdracht

Status Onder bod
Vraagprijs € 350.000 k.k.
Aanvaarding Per datum

Bouwvorm

Bouwjaar 2002
Bouwvorm Bestaande bouw
Woonoppervlakte 69 m²
Externe Bergruimte 5 m²
Aantal Kamers 2
Aantal Slaapkamers 1
Aantal Woonlagen 1
Inhoud 208 m³
Cv Ketel Merk Vaillant
Cv Ketel Bouwjaar 2019

Bergruimte

Schuur/Berging Inpandig

Parkeergelegenheid

Parkeerfaciliteiten Openbaar parkeren, betaald parkeren, parkeervergunningen

Overig

Onderhoud Binnen Goed
Onderhoud Buiten Goed
Huidige Bestemming Woonruimte

Kadaster

Gemeente Woensel
Sectie G
Perceel 6322
Eigendomssituatie Volle eigendom

Locatie

Benieuwd naar jouw mogelijkheden?

We zijn benieuwd naar je verhaal!

Heb je een vraag of wil je een afspraak met ons maken? Je kunt ons bellen of stuur een Whatsapp-bericht. Je hoort snel van ons!