Annecyhof 25
5627 DJ, Eindhoven
€ 525.000
k.k.
Interesse in deze woning?
-
Plan een bezichtiging
Annecyhof 255627 DJ, Eindhoven -
Breng een bod uit op Move.nl
Bod plaatsen
Dit kan via het Move.nl platform.
Omschrijving
- Bouwjaar 1980
- Woonoppervlakte 136 m²
- Aantal kamers 6
- Aantal slaapkamers 5
Ruime en energiezuinige gezinswoning met serre, 5 slaapkamers en garage in Achtse Barrier.
Aan een rustig en groen hofje in de populaire wijk Achtse Barrier ligt deze verrassend ruime tussenwoning met maar liefst vijf slaapkamers, een lichte living met vloerverwarming en een fraaie terrasoverkapping/serre met glazen schuifpanelen. De woning is goed onderhouden, voorzien van kunststof kozijnen met triple beglazing en beschikt over energielabel A. Met een zonnige achtertuin op het zuidwesten en afsluitbare carport en volop ruimte is dit een ideale gezinswoning.
Begane grond
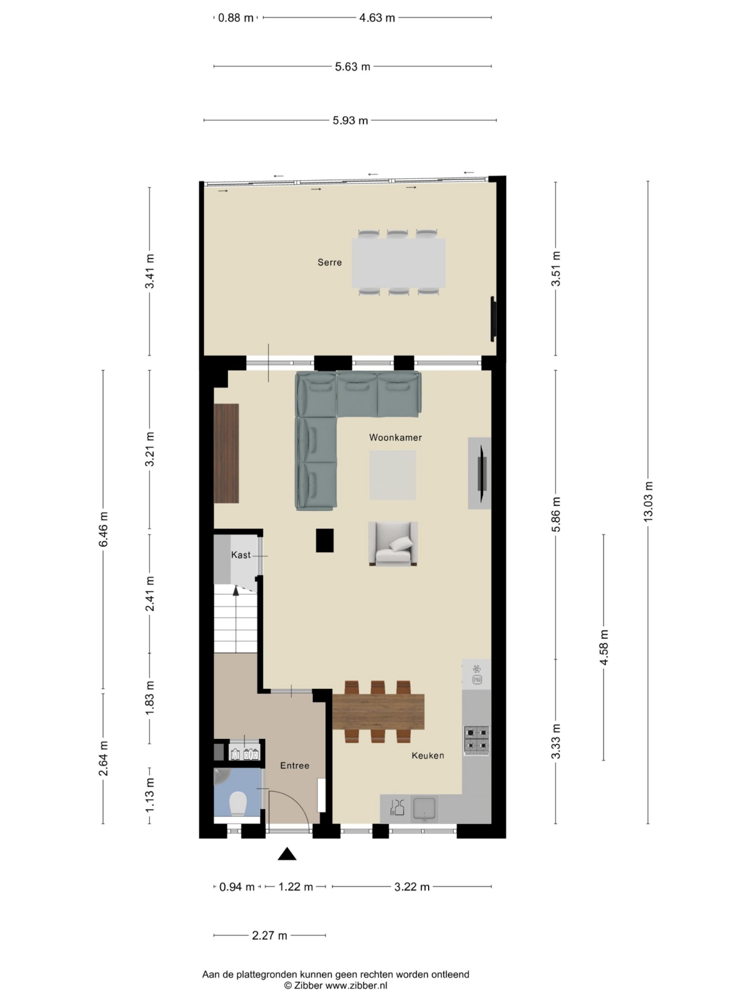
Via de entree kom je in de hal met toiletruimte, meterkast en trapopgang. De woonkamer is royaal van opzet en heerlijk licht dankzij de grote raampartijen. De tegelvloer met vloerverwarming zorgt voor een strakke en praktische basis.
Aan de voorzijde bevindt zich de open keuken in een lichte hoekopstelling, voorzien van diverse inbouwapparatuur, waaronder een 4-pits gaskookplaat, rvs-afzuigkap, vaatwasser, koelkast, combi-oven/magnetron en voldoende werk- en bergruimte. De woonkamer en eetkamer staan in directe verbinding met elkaar, waardoor een fijne leefruimte ontstaat.
Aan de achterzijde is de woning voorzien van een fraaie tuinkamer/serre over de gehele breedte van de woning (3,50 x 6.00 m.). Deze is voorzien van zes glazen schuifpanelen, waardoor je hier vrijwel het hele jaar door van de tuin kunt genieten. De overgang naar buiten is hierdoor bijzonder prettig en zorgt voor extra leefruimte.
Eerste verdieping
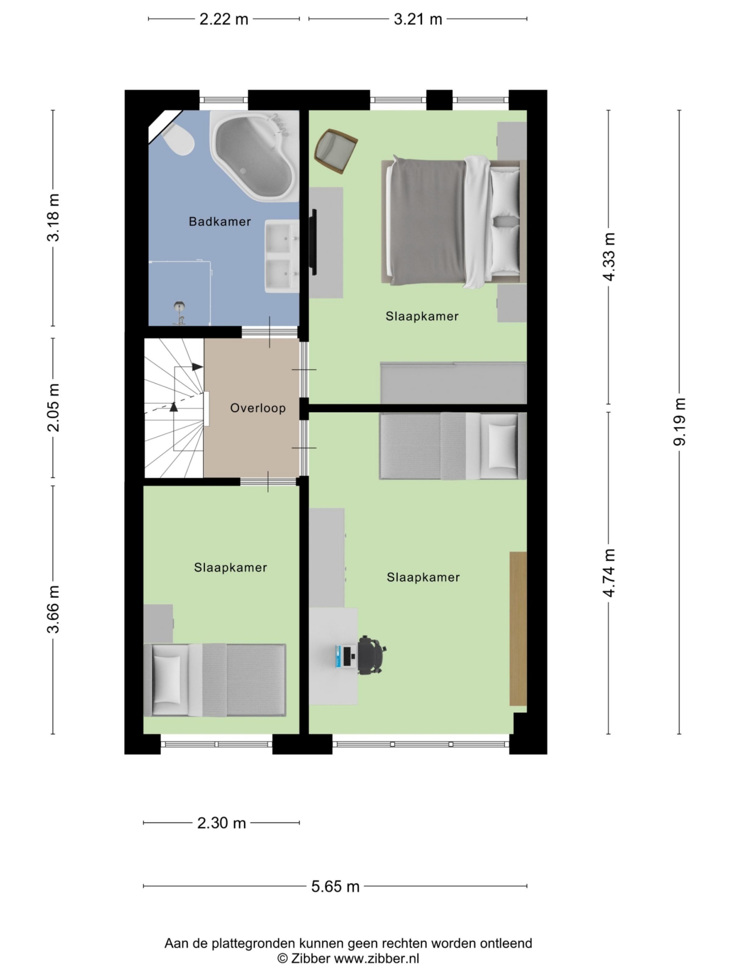
De eerste verdieping beschikt over drie volwaardige slaapkamers. De slaapkamers aan de achterzijde zijn voorzien van rolluiken en horren.
De badkamer is compleet uitgevoerd en beschikt over een duoligbad met jetstreams, separate douchecabine, dubbele wastafel in meubel, een 2e toilet, handdoeken radiator en mechanische afzuiger met naloop.
Tweede verdieping
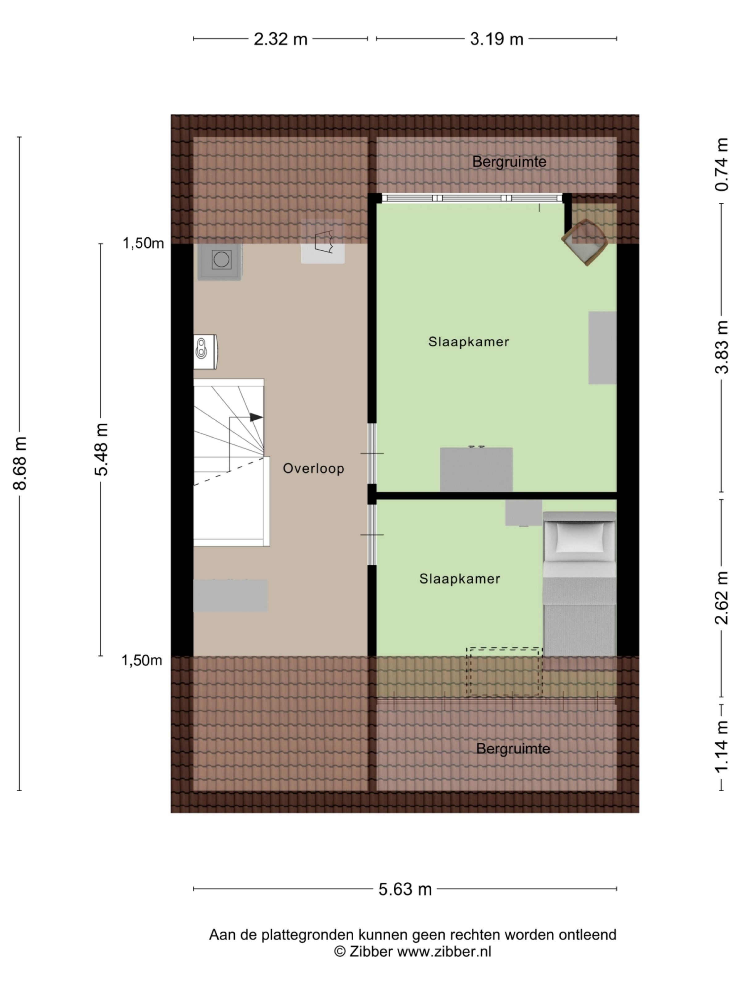
Via een vaste trap bereik je de tweede verdieping. Hier bevinden zich nog eens twee slaapkamers, waardoor de woning in totaal vijf slaapkamers telt. Ideaal voor grotere gezinnen, thuiswerkplekken of hobbyruimtes.
Daarnaast is er op deze verdieping volop bergruimte aanwezig onder de schuine kap en op de overloop. Ook bevindt zich hier de aansluiting voor de wasapparatuur en opstelling van de c.v.-ketel.
Buitenruimte
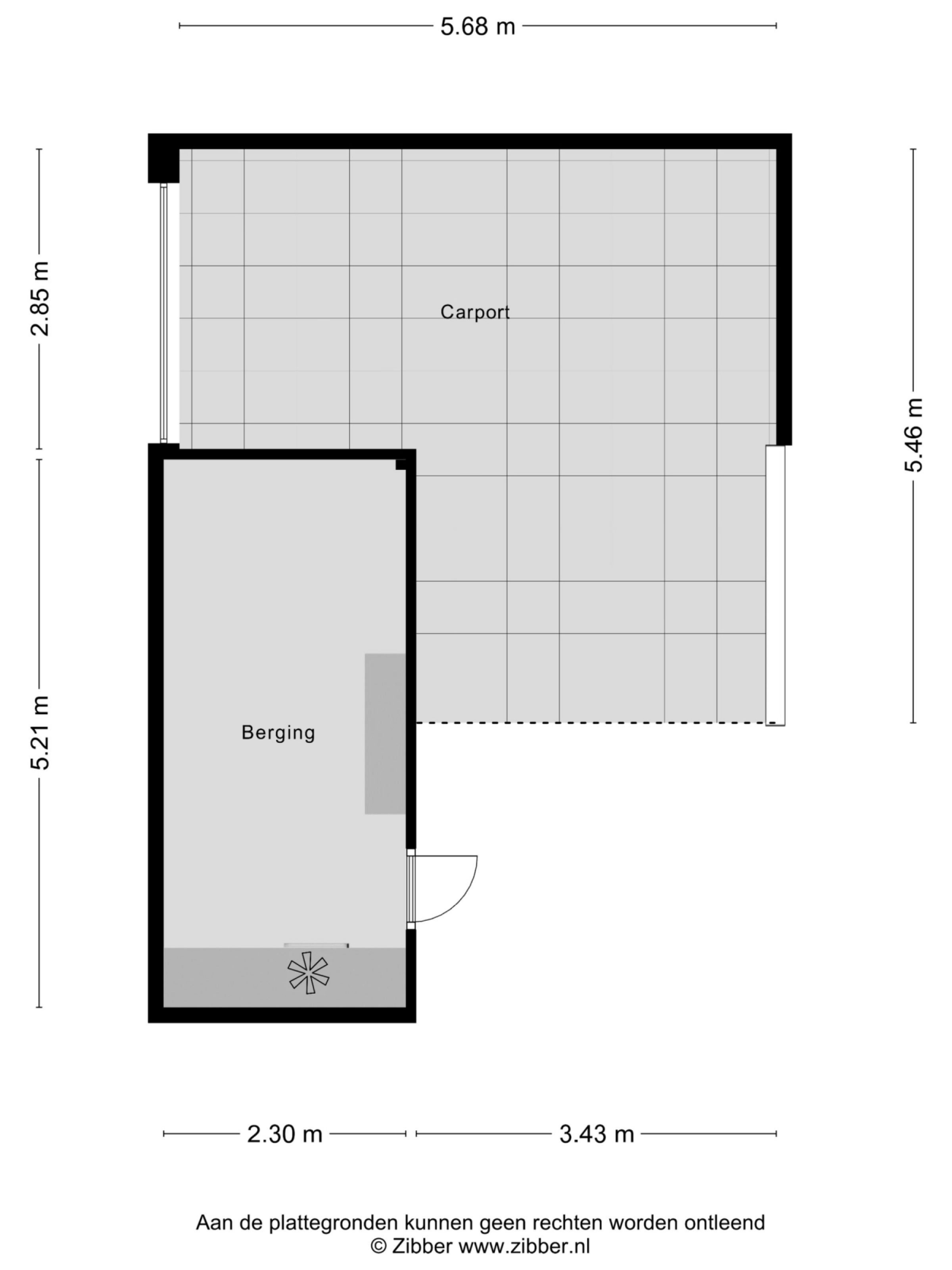
De royale diepe achtertuin is verzorgd aangelegd en gunstig gelegen op het zuidwesten, waardoor je hier volop van de zon kunt genieten. Achter in de tuin bevindt zich de berging met aansluitend een afsluitbare carport.
Ligging
De woning is gelegen in de gewilde en kindvriendelijke wijk Achtse Barrier in Eindhoven-Noord. In de directe omgeving bevinden zich diverse voorzieningen zoals scholen, winkels, sportfaciliteiten en parken. Ook recreatiegebied Aqua Best ligt op korte afstand. Daarnaast zijn de uitvalswegen richting Eindhoven centrum, bedrijventerreinen en snelwegen (A2, A50 en A58) uitstekend bereikbaar.
ALGEMEEN:
- Ruime tussenwoning met 5 slaapkamers!
- Lichte living met tegelvloer en vloerverwarming;
- Tuinkamer/serre met 6 glazen schuifpanelen;
- Zonnige achtertuin op het zuidwesten;
- Afsluitbare carport en parkeerplaats;
- Kunststof kozijnen met triple beglazing en energielabel A;
- Rolluiken en horren op slaapkamers achterzijde;
- Gelegen in rustige en kindvriendelijke wijk;
- Nabij winkels, scholen, park en Aqua Best;
- Goede bereikbaarheid richting uitvalswegen.
Aan een rustig en groen hofje in de populaire wijk Achtse Barrier ligt deze verrassend ruime tussenwoning met maar liefst vijf slaapkamers, een lichte living met vloerverwarming en een fraaie terrasoverkapping/serre met glazen schuifpanelen. De woning is goed onderhouden, voorzien van kunststof kozijnen met triple beglazing en beschikt over energielabel A. Met een zonnige achtertuin op het zuidwesten en afsluitbare carport en volop ruimte is dit een ideale gezinswoning.
Begane grond
Via de entree kom je in de hal met toiletruimte, meterkast en trapopgang. De woonkamer is royaal van opzet en heerlijk licht dankzij de grote raampartijen. De tegelvloer met vloerverwarming zorgt voor een strakke en praktische basis.
Aan de voorzijde bevindt zich de open keuken in een lichte hoekopstelling, voorzien van diverse inbouwapparatuur, waaronder een 4-pits gaskookplaat, rvs-afzuigkap, vaatwasser, koelkast, combi-oven/magnetron en voldoende werk- en bergruimte. De woonkamer en eetkamer staan in directe verbinding met elkaar, waardoor een fijne leefruimte ontstaat.
Aan de achterzijde is de woning voorzien van een fraaie tuinkamer/serre over de gehele breedte van de woning (3,50 x 6.00 m.). Deze is voorzien van zes glazen schuifpanelen, waardoor je hier vrijwel het hele jaar door van de tuin kunt genieten. De overgang naar buiten is hierdoor bijzonder prettig en zorgt voor extra leefruimte.
Eerste verdieping
De eerste verdieping beschikt over drie volwaardige slaapkamers. De slaapkamers aan de achterzijde zijn voorzien van rolluiken en horren.
De badkamer is compleet uitgevoerd en beschikt over een duoligbad met jetstreams, separate douchecabine, dubbele wastafel in meubel, een 2e toilet, handdoeken radiator en mechanische afzuiger met naloop.
Tweede verdieping
Via een vaste trap bereik je de tweede verdieping. Hier bevinden zich nog eens twee slaapkamers, waardoor de woning in totaal vijf slaapkamers telt. Ideaal voor grotere gezinnen, thuiswerkplekken of hobbyruimtes.
Daarnaast is er op deze verdieping volop bergruimte aanwezig onder de schuine kap en op de overloop. Ook bevindt zich hier de aansluiting voor de wasapparatuur en opstelling van de c.v.-ketel.
Buitenruimte
De royale diepe achtertuin is verzorgd aangelegd en gunstig gelegen op het zuidwesten, waardoor je hier volop van de zon kunt genieten. Achter in de tuin bevindt zich de berging met aansluitend een afsluitbare carport.
Ligging
De woning is gelegen in de gewilde en kindvriendelijke wijk Achtse Barrier in Eindhoven-Noord. In de directe omgeving bevinden zich diverse voorzieningen zoals scholen, winkels, sportfaciliteiten en parken. Ook recreatiegebied Aqua Best ligt op korte afstand. Daarnaast zijn de uitvalswegen richting Eindhoven centrum, bedrijventerreinen en snelwegen (A2, A50 en A58) uitstekend bereikbaar.
ALGEMEEN:
- Ruime tussenwoning met 5 slaapkamers!
- Lichte living met tegelvloer en vloerverwarming;
- Tuinkamer/serre met 6 glazen schuifpanelen;
- Zonnige achtertuin op het zuidwesten;
- Afsluitbare carport en parkeerplaats;
- Kunststof kozijnen met triple beglazing en energielabel A;
- Rolluiken en horren op slaapkamers achterzijde;
- Gelegen in rustige en kindvriendelijke wijk;
- Nabij winkels, scholen, park en Aqua Best;
- Goede bereikbaarheid richting uitvalswegen.
Advies over de juiste hypotheek?
Bel Robert: 040-2927575
Informatie downloaden van Annecyhof 25
Informatie downloaden van Annecyhof 25
Kenmerken
Overdracht
| Status | Beschikbaar |
| Vraagprijs | € 525.000 k.k. |
| Aanvaarding | In overleg |
Bouwvorm
| Soort Woning | Eengezinswoning |
| Type Woning | Tussenwoning |
| Bouwjaar | 1980 |
| Bouwvorm | Bestaande bouw |
| Woonoppervlakte | 136 m² |
| Perceeloppervlakte | 199 m² |
| Externe Bergruimte | 12 m² |
| Aantal Kamers | 6 |
| Aantal Slaapkamers | 5 |
| Aantal Woonlagen | 3 |
| Inhoud | 481 m³ |
| Cv Ketel Merk | Intergas |
| Cv Ketel Bouwjaar | 2024 |
Bergruimte
| Schuur/Berging | Vrijstaand steen |
Parkeergelegenheid
| Parkeerfaciliteiten | Openbaar parkeren, op eigen terrein |
Overig
| Onderhoud Binnen | Goed |
| Onderhoud Buiten | Goed |
| Huidige Bestemming | Woonruimte |
Kadaster
| Gemeente | Woensel |
| Sectie | S |
| Perceel | 1456 |
| Oppervlakte | 199 m² |
| Eigendomssituatie | Volle eigendom |